Planning Committee
29 February 2024
|
Welcome Welcome to this Planning Committee Meeting of the Port Phillip City Council. The aim of this Committee is to consider, within the framework of the Planning and Environment Act, State and Local Planning Schemes, major planning applications or applications that will have a large impact on the local area. This Committee also allows you to be involved in the statutory and strategic planning decision making processes of Council. About this meeting There are a few things to know about tonight’s meeting. The first page of tonight’s Agenda itemises all the different parts to the meeting. Some of the items are administrative and are required by law. In the agenda you will also find a list of all the items to be discussed this evening. Each item has a report written by a Council officer outlining the purpose of the report, all relevant information and a recommendation. The Committee will consider the report and either accept the recommendation or make amendments to it. This Committee has delegated authority. A recommendation is carried if it receives majority support of the Councillors in attendance at the Committee meeting. |
Public Question Time and Submissions Public Question Time Provision is made at the beginning of the meeting for general question time from members of the public concerning planning matters. Members of the public have the option to either participate in person or join the meeting virtually via Teams to ask their questions live during the meeting. If you would like to address the Council and /or ask a question on any of the items being discussed, please submit a ‘Request to Speak form’ by 4pm on the day of the meeting via Council’s website: Request to speak at a Council meeting - City of Port Phillip
|
|
|
|
|
PORT PHILLIP CITY COUNCIL Planning Committee |
To Councillors
Notice is hereby given that a Planning Committee Meeting of the Port Phillip City Council will be held in St Kilda Town Hall and virtually via Teams on Thursday, 29 February 2024 at 6:30pm. At their discretion, Councillors may suspend the meeting for short breaks as required.
AGENDA
1 APOLOGIES
2 MINUTES OF PREVIOUS MEETINGS
Minutes of the Planning Committee 14 December 2023.
3 Declarations of Conflicts of Interest
4 Public Question Time and Submissions
5 Councillor Question Time
6 Presentation of Reports
6.1 78, 80-94 Cecil Street, 119-125 Market Street, 3-5, 7 Northumberland Street and 146-164, 166, 168, 170 York Street, South Melbourne...................................... 9
6.2 Statutory Planning Delegated Decisions Report 14 December 2023 to January 2024 (Inclusive)........... 153
7 URGENT BUSINESS
8 Confidential Matters
Nil
Planning Committee
29 February 2024
3. Declarations of Conflicts of Interest
4. Public Question Time and Submissions
5. Councillor Question Time
6.1 78, 80-94 Cecil Street, 119-125 Market Street, 3-5, 7 Northumberland Street and 146-164, 166, 168, 170 York Street, South Melbourne............. 7
6.2 Statutory Planning Delegated Decisions Report 14 December 2023 to January 2024 (Inclusive)......................................................................... 151
Planning Committee
29 February 2024
|
78, 80-94 Cecil Street, 119-125 Market Street, 3-5, 7 Northumberland Street and 146-164, 166, 168, 170 York Street, South Melbourne |
|
|
location/address: |
78, 80-94 Cecil Street, 119-125 Market Street, 3-5, 7 Northumberland Street and 146-164, 166, 168, 170 York Street, South Melbourne |
|
Executive Member: |
Brian Tee, General Manager, City Growth and Development |
|
PREPARED BY: |
Scott Parkinson, Principal Planner |
1. PURPOSE
1.1 To determine an application to amend planning permit 303/2018 which seeks to modify the planning approval to incorporate a supermarket and commercial car park, a redesigned building including additional levels and floorspace with a new form and design and add the properties at 78 Cecil Street and 166-170 York Street.
2. EXECUTIVE SUMMARY
|
Ward: |
Gateway |
|
Trigger
for determination |
16 or more objections |
|
ApplicATION NO: |
303/2018/A |
|
Applicant: |
Urbis Pty Ltd |
|
Existing use: |
Vacant (current planning approval is for an office and retail development) |
|
Abutting uses: |
A range of commercial and community land uses but predominantly office and retail |
|
Zoning: |
Commercial 1 Zone (C1Z) and Commercial 2 Zone (C2Z) |
|
Overlays: |
Design and Development Overlay (DDO8) Environmental Audit Overlay (EAO) Heritage Overlay (HO289) |
|
Statutory
time remaining for |
Expired |
2.1 Planning Permit 303/2018 issued by VCAT on 1 May 2019, allows for the construction of an eight storey commercial building, comprising office, shop and two food and drinks premises. 270 car parking spaces were to be provided within three basement levels which would be accessed from Northumberland Street.
2.2 This is a S72 application to amend the current planning approval. Several changes are proposed in the amendment application including a new supermarket to be added to the ground floor along with a commercial car park within the basement. The application also proposes a newly designed building at a larger scale and different architectural design. The proposal would increase the scale of the building by two additional storeys and 13.82m, increase the office floor area by approximately 5,500 sqm and add a 3,394sqm supermarket. The amendment application also seeks to include the properties at 166-170 York Street at 78 Cecil Street into the development. The property at 78 Cecil Street contains a heritage hotel building which it is proposed to be incorporate but adapted back to its historic use as a hotel.
2.3 The Victorian planning system recognises that a permit holder’s intentions may change over time. Rather than requiring a new permit application to be made every time a change is proposed, Section 72 of the Planning and Environment Act 1987 allows applicants to apply to the responsible authority for an amendment to a permit and associated plans. The assessment of this application is confined to the proposed changes to what has already been approved.
2.4 An application to amend a permit under Section 72, including any plans, drawings or other documents approved under a permit, follows the same process as an application for a permit. It has the same requirements for giving notice and referral.
2.5 The application was advertised and received 16 objections. The concerns raised relate to a broad range of issues including concerns that the changes are a transformation of the proposal, the adverse impact the supermarket would have on the vitality of Clarendon Street, noncompliance with the design and development overlay, the impact on heritage, traffic impacts, car parking and the impact of loading particularly on Northumberland Street.
2.6 A Consultation Meeting was held on 24 October 2023. The meeting was attended by the Gateway ward councillors, the applicant, objectors, and planning officers. The meeting resulted in no formal changes being made to the application. However, following the meeting the applicant has investigated the proposed loading arrangement to the Supermarket which is now proposed to be changed so that loading vehicles would enter and exit the loading area in a forward direction (as shown on a set of Revised Plans).
2.7 During the processing of this amendment application the proposal was formally amended under S57A of the Act which made several significant changes to the proposal. These included a revised design by new architects (Woods Bagot) which modified the layout form and design of the building and added a range of proposed public realm works.
2.8 The changes sought in the amendment application expand the scope from the current approval where a larger office development is proposed, and a supermarket would now be included on the ground floor of the building. The proposal measures favourably with the Planning Policy Framework, particularly given the strategic location of the site in the South Melbourne Central Activity Centre where there is a strong policy emphasis to support the existing commercial base of South Melbourne in business services and light industry and the expansion of the area as a location for knowledge based and creative industries.
2.9 A larger building is proposed in the amendment application with a different design approach from the current approval. It is considered that the new design measures favourably against the character sought for South Melbourne Central and the design objectives detailed in the Design and Development Overlay that affects the site. The new design would improve on the previous design with a more modulated form to create a finer grain of scale, materiality and texture and an innovative design approach to the upper levels to reduce the “wedding cake” appearance of the building. Overall, the amended proposal is considered a high-quality architectural building, designed to respond to the important character and design attributes identified for South Melbourne Central and which would have a positive impact on the surrounding area.
2.10 A building of the size and scale that is proposed needs careful consideration of the traffic, parking and access and manoeuvring associated with the development. These issues have been resolved during the processing of the application where the traffic associated with the development would not adversely affect the surrounding street network, appropriate car parking has been provided and loading would be appropriately managed to not adversely affect the surrounding area.
2.11 Beyond these matters the proposal is highly resolved where it would provide excellent bicycle parking provision, acceptable ESD and WSUD outcomes, and reasonable waste management outcomes.
2.12 The development that would be approved by the amendment application would deliver a net community benefit to its site and surrounds subject to the conditions forming part of this recommendation.
2.13 It is considered that the changes proposed in the amendment application are acceptable subject to modifications to the conditions of the existing permit. It is recommended that Council issues a Notice of Decision to Amend a Planning Permit.
4. RELEVANT BACKGROUND
The following relevant applications have previously been considered for the subject site:
|
Application No. |
Proposal |
Decision |
Date of Decision |
|
303/2018 |
Construction of a multi storey building comprising office, shops and food and drinks premiss (as of right uses), buildings and works in association with a Design and Development Overlay and reduction in car parking |
Approved by VCAT |
1 May 2019 |
4.1 There are a range of earlier planning permit for the various lots that make up the subject site but none of these earlier permits are relevant to this application.
4.2 Planning Permit 303/2018 was approved by VCAT on 1 May 2019, after a Notice of Decision was issued under delegation on 1 November 2018. The VCAT proceeding was a S82 appeal lodged by objectors to the original application. The VCAT approval was issued after a position of agreement was reached by all parties at a Compulsory Conference.
4.3 The planning permit approved an eight storey building (plus three basement levels) comprising office (approx. 15,000sqm), shop (188sqm) and two food and drinks premises. The development was to provide 270 car spaces with access to car parking provided from Northumberland Street. All waste and loading was to occur via Northumberland Street.
4.4 The approved building was an eight storey development (approx. 26m high) that would extend across the entire consolidated lot. The approved development was designed with a three storey street wall along all street frontages (though a 3m setback and curved architectural expression is provided to the heritage pub in the north-eastern corner of the site) with the upper form to be stepped rising from the south (York Street) to the north (Market Street).
4.5 The design incorporated a series of tapering tubular slices into the building to provide natural light to the office levels. The tubular slices to cumulate in a large internal green central courtyard “secret garden” on the ground floor. A series of horizontal canopies was also provided for weather protection and to help break up the various levels and the overall massing of the building.
4.6 A mix of glazing (warm brown reflective glazing to the upper levels and clear glazing to the shopfronts) metal cladding (bronze anodised aluminium framing), white semi polished rendered slabs and lightweight black net balustrades was to be used for the building’s material and finishes.
4.7 The permit is still valid. An extension of time request was approved for the commencement of the development on 04 May 2022. The permit will expire on 1 May 2025 if the development has not commenced.
5. PROPOSAL
5.1 The application proposes to amend the existing permit to incorporate a range of changes. The changes include adding a new supermarket to the ground floor along with a commercial car park within the basement. The application also proposes a newly designed building at a larger scale and different architectural design.
5.2 The proposal would increase the scale of the building, with an additional 13.82m in height, increase the office floor area by approximately 5,500sqm and add a 3,394sqm supermarket. Changes are also proposed to car parking, access and loading arrangements, including the addition of 57 extra car parking spaces (327 spaces are now proposed).
5.3 The amendment application also seeks to include the properties at 166-170 York Street at 78 Cecil Street into the development. The property at 78 Cecil Street contains a heritage hotel building which it is proposed to be incorporated but adapted back to its historic use as a hotel.
5.4 Specifically, the section 72 amendment application seeks the following amendments (as indicated by the applicant):
Amendment to Permit Preamble and Conditions
· Amend the permit preamble to include details of demolition and the building and works in a Heritage Overlay, add the use for a commercial car park and note that a supermarket is now proposed (permit not required for the Supermarket use). The amended permit preamble would read as follows:
Demolish a building and construct or carry out works in a Heritage Overlay, use of a Commercial car park, construction of a multi storey building comprising office, supermarket, shops and food and drinks premises (as of right uses), buildings and works in association with a Design and Development Overlay and reduction in car parking.
Add the properties 78 Cecil Street and 166-170 York Street.
· Delete condition 2. Condition 2 was in relation to a Right of Way (RoW) that was still part of the subject site when the original application was assessed. This is no longer relevant as the RoW has been discontinued and purchased by the developer.
· Amend the following conditions:
Condition 1 - Amended plans
Condition 7 - Sustainable Management Plan
Condition 11 - Waste Management Plan
Condition 21 - Car Parking Allocation
Condition 24 - Car Parking Free of Charge
Condition 29 - Consolidation
Amendment to Plans
· Add the properties 78 Cecil Street and 166-170 York Street into the development site.
· Changes to the development layout, building footprint, height and setbacks and overall design. The main changes including an additional basement level, an increase to the height of the building and changes to the floor plans (particularly the uses on the ground floor). A supermarket has been added to the ground floor, a hotel incorporated into the development and other changes to the mix and configuration of uses on the ground floor.
· Changes to car, motorbike and bicycle parking provision, access and layout including an increase in the number of car parking spaces, the deletion of car access from Northumberland Street and the addition of vehicle access from Market Street. (Waste collection and supermarket loading access to be from Northumberland Street).
· Changes to building façade design, materials, and detailing.
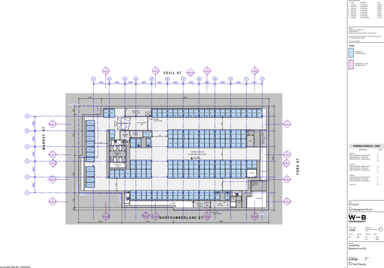
5.5 The plans which are the subject of this report are those drawn by Wood Bagot entitled “80 Cecil St”, project no 130986, plan no’s TP0000, TP1000, TP1001, TP1002, TP1101, TP1207, TP1208, TP1209, TP1210, TP1211, TP1212, TP1213, TP1214, TP1215, TP1216, TP1217, TP1218, TP1219, TP1220, TP1301, TP1302, TP1351, TP1352, TP1361, TP1362, TP4210, TP4211, TP4212, TP9601, TP9611, TP9612, TP9701, TP9702, TP9711, revision H, dated 11/08/23. Plans council date stamped 16/08/2022.
5.6 The below table compares the key elements of the proposal with the approved development:
|
|
Approved |
Proposed |
|
Type of development |
Construction of a multi storey building comprising office, shops and food and drinks premises (as of right uses), buildings and works in association with a Design and Development Overlay and reduction in car parking
|
Demolish a building and construct or carry out works in a Heritage Overlay, use of a Commercial car park, construction of a multi storey building comprising office, supermarket, shops and food and drinks premises (as of right uses), buildings and works in association with a Design and Development Overlay and reduction in car parking. |
|
Demolition |
Yes |
Yes. It is noted most of the site has already been demolished) The application would now require planning approval for partial demolition of the heritage building at 78 Cecil Street which is now included in the development. |
|
Height |
25.78m / 8 storeys 30.690 RL to topmost habitable level 37.640 RL to top of plant |
39.6m / 10 storeys 44.000 RL to topmost habitable level 48.500 RL to top of plant 13.82m increase in height. |
|
Land Use and Floor Areas |
Office 15,000sqm Retail 782sqm
|
Office 20,492sqm Supermarket 3,394sqm Retail 402sqm Hotel (Pub) 615sqm |
|
Design and Form
|
Stepped form, rising up from a 3 storey form at the southern boundary (York Street) up to an 8 storey form but then tapering down again to a 3 storey form to the northern boundary (Market Street). The building was designed with a strong horizontal apperance that was particularly emphasised by the use of a series of horizontal canopies for weather protection and to break up the levels. The design to incoporate tapering tubular slices to provide natural light into the office levels.
Fig 1: 3D Model of approved building |
Stepped form, rising up from a 2 storey form at the southern boundary (York Street) up to a 10 storey form near the northern boundary with a small setback provided to the 3 storey form to the northern boundary (Market Street). The building designed to have a more modulated appearance than the current approval with the lower levels designed with recesses to break up the massing. The upper levels to provide a stepped form rising up from the south to the north but also designed to step in from the sides to reduce the appearance of a wedding cake form.
Fig 2: 3D Model of building proposed in amendment application |
|
Vehicular Access |
Vehicular access provided from Northumberland Street via a double width accessway. This provides access to 270 car parking spaces in three basement levels. |
Vehicular access provided from Market Street via a double width accessway. This provides access to 327 spaces in three basement levels. |
|
Loading bay |
All loading and waste collected from within the development accessed via Northumberland Street. A waste storage area (100sqm) was to be provided on the lower ground floor adjacent to a loading dock. Waste would be collected from the loading docks adjacent to the waste storage area, Collection vehicles would enter the lower ground floor in a forward direction and use the area at the bottom of the driveway to reverse into the loading dock and collection waste from the collection point, before exiting via the driveway in a forward direction.
|
Loading and waste collection via three collection points. Two of the collection points from Northumberland Street and one from Market Street. Supermarket - a loading/waste area is proposed to be provided on the ground level along the site’s western boundary to Northumberland Street. This area has been designed to accommodate vehicles of a size up to and including 12.5m long heavy rigid vehicles (HRVs). Office & Retail Uses - a loading/waste area is proposed to be provided at the site’s northern boundary to Market Street. This area has been designed to accommodate vehicles of a size up to and including 8.8m long medium rigid vehicles (MRVs). Retail Uses - a loading/waste area is proposed to be provided on the ground level along the site’s western boundary to Northumberland Street. This area has been designed to accommodate vehicles of a size up to and including 6.4m long small rigid vehicles (SRVs). |
|
Car Parking |
270 car parking spaces in three basement levels.
|
327 spaces in three basement levels (plans for consideration). Car parking to be spilt between public (for the supermarket) and private as follows: · 192 public car park spaces · 135 private car parking spaces |
|
Motorcycle parking |
18 |
0 |
|
Bicycle parking |
184 spaces provided within the ground floor |
232 spaces. |
Amended Plans
5.7 The plans listed above are amended from an earlier set of plans that were originally lodged for this application. The plans were formally amended under S57A following concerns raised by the planning officer, internal referrals and objectors. The changes included the following:
· A revitalised ground floor including additional specialty retail fronting York Street, a modified façade presentation of the podium level including variation in podium height along the length of the Eastern and Western Street interfaces and a mini public plaza proposed to the corner of Cecil and York Street.
· Changes to the connection to the existing Southern Cross Hotel and an increased extent of façade retention proposed to the Southern Cross Hotel.
· The commercial building core relocated to a central floorplate position.
· Commercial loading dock relocated to Market Street.
· The secondary commercial core / lobby relocated further up Northumberland Street (previously fronting York Street).
· A range of public realm works.
· Level access into the shared commercial / retail carpark from Market Street, removing an entire basement level. The plans that were originally submitted for the S72 amendment application proposed four basement levels.
· Triple access lane to the carpark reduced to a dual access lane through a traffic engineered solution, reducing the required width of carpark entry and crossover at street.
· Modified design to the upper levels to appear more like a series of individual buildings. Recesses provided between the masses to allow for winter gardens and moments of natural ventilation to the floorplates.
· Modification of the landscape strategy to the terraces to all Levels 02-09.
· Targeting CLT construction for the primary building structure.
· Changes to the façade design; integrating vertical and horizontal shade sail elements into the building envelope with colour / finish variation to define the building masses.
5.8 The amended plans were readvertised, but no new objections were received. The amended plans are the plans considered in the below assessment (though noting further changes have been made in Revised Plans).
Revised Plans
5.9 Following concerns about the loading arrangement for the supermarket, plans have been submitted which have modified the loading bay on Northumberland Street to allow loading vehicles to enter and exit in a forward direction. The submitted plans also made some other minor changes consisting of a revised entry / exit to Market Street carpark access to create a compliant sight triangle at the boundary exit, a revision to the secondary core and the provision of six additional car parking spaces (from 321 to 327) due to the rearranged secondary core.
5.10 The Revised Plans are identified as the plans prepared by Woods Bagot, Plan no’s TP1207, TP1208, TP1209, TP1210, TP1211, TP1212, and TP1213 dated 13/12/2023 and council date received 2/01/2024. A revised Traffic Report was also submitted with the Revised Plans.
5.11 The plans were not formally submitted but only lodged for consideration and as such were not readvertised The Revised plans will be considered in the below assessment.
6. SUBJECT SITE AND SURROUNDS
|
|
Description of Site and Surrounds |
|
Site Area |
5,368sqm |
|
Existing building & site conditions |
The subject site is located on the north-west corner of York and Cecil Street’s in South Melbourne. The ensemble site comprises numerous properties comprising most of the block of properties between Cecil Street and Northumberland Street. The site includes the following addresses 78 Cecil Street, 80-94 Cecil Street, 119-125 Market Street, 3-5 Northumberland Street, 7 Northumberland Street and 146-164 York Street, 166 York Street, 168 York Street and 170 York Street, South Melbourne. The site is irregular (roughly rectangular) in shape with a frontage of 91 metres to Cecil Street, 78 metres to Northumberland Street, 55 metres to York Street, and 46 metres to Market Street, resulting in a total site area of 5368 square metres. The subject site comprises fifteen (15) land parcels in a vacant site. The properties were previously developed with a range of single and double storey commercial and industrial buildings as well as associated car parking. Vehicle access to the site is provided via six crossovers to Cecil Street, four crossovers to Northumberland Street and a single crossover to York Street.
Fig 3: Subject Site |
|
Surrounds/neighbourhood character |
The subject site is located within the Western Business and Emerging Activity precincts of the South Melbourne Central Precinct (SMC). The SMC is characterised by a range of commercial residential and community land uses within an established commercial setting. Built form within this surrounding area is mixed with a range of buildings of varied scale and architectural design. The immediately surrounding area where the site is located contains a mix of land uses generally comprising retail and office development. Buildings range considerably in scale from the remnant single and double storey traditional office, warehouse, and hotel buildings to new large scale contemporary development such as the 8 storey mixed use development, built on the eastern side of Cecil Street. The site is located approximately 150m from the light rail near the South Melbourne Market, 400m west of Clarendon Street, opposite the South Melbourne Market and 1.5km from the Melbourne CBD. The site is well served by public transport with tram services located directly nearby including the light rail and tram services on Clarendon Street located within walking distance from the subject site. |
|
Interfaces |
The applicant has provided a detailed assessment of the interfaces which is reproduced below: North Market Street forms the site’s predominant northern boundary and the border between South Melbourne and Southbank. The street comprises a single lane of vehicular traffic and on-street parking providing one way access from Cecil Street through to City Road. On the opposite side are No. 70-76 Cecil Street and No. 359-361 City Road, Southbank. No. 70-76 Cecil Street is currently developed as a double storey commercial brick building with access from Market Street. No. 359-361 City Road is also currently developed as a double storey commercial brick building with access from both Market Street and City Road. Both are affected by a Heritage Overlay (HO4 – City Rd Industrial Area). South York Street forms the site’s southern boundary providing a two-way east-west link between Kings Way to the east and City Road to the west. On the opposite side is the South Melbourne Market, which comprises a range of stalls, shops and restaurants on the ground floor with car parking above. East Cecil Street forms the site’s eastern boundary providing a two-way north-south link between City Road to the north and Albert Road to the south. On the opposite side is a 7-storey mixed use building fronting Cecil, Market and York Streets. The building comprises a supermarket, shops, offices, restaurants and two basement levels of associated car parking. West Northumberland Street forms the site’s western boundary providing a one-way rear accessway to abutting properties from York Street through to Market Street. On the opposite side are 129-131 Market Street, No.’s 10, 12, 14 and 16 Northumberland Street, and 172 York Street. The sites are developed with a mix of 1-5 storey buildings comprising a mix of commercial and industrial uses. |
7. Permit Triggers
7.1 Section 73(1) of the Planning and Environment Act 1987 states that Sections 47 to 62 apply to an application to amend a permit as if the application were an application for a permit and any reference to a permit were a reference to the amendment to the permit.
7.2 Therefore, the amendments to the permit and plans are to be assessed against the relevant planning controls affecting the proposal.
7.3 Note: Only the changes to the approved proposal are considered as part of this application for amendment. The following zone and overlay controls apply to the site, with planning permission required as described.
|
Zone or Overlay
|
Why is a permit required? |
|
Clause 34.01 Commercial 1 Zone (C1Z)
78 Cecil Street, 80 - 94 Cecil Street, 3 - 5 Northumberland Street, 7 Northumberland Street and 146 - 164 York Street, South Melbourne.
|
Use § Pursuant to Clause 34.01-1, a planning permit is required to use the site as a car park § Pursuant to Clause 34.01-1, a planning permit is not required for a Food and Drinks premises § Pursuant to Clause 34.01-1, a planning permit is not required for a shop § Pursuant to Clause 34.01-1, a planning permit is not required for the use of the site as an office § Pursuant to Clause 34.01-1, a planning permit is not required for the use of the site as a Retail Premises (Supermarket) Buildings and Works § Pursuant to Clause 34.01-4 a planning permit is required for buildings and works on a site in Commercial 1 zone |
|
Clause 34.02 Commercial 2 Zone (C2Z)
119-125 Market Street, 166 York Street, 168 York Street and 170 York Street
|
Use § Pursuant to Clause 34.02-1, a planning permit is required to use the site for a car park. § Pursuant to Clause 34.02-1, a planning permit is not required for a Food and Drinks premises § Pursuant to Clause 34.02-1, a planning permit is not required for the use of the site as an office No part of the supermarket including parking, access or loading is located within the Commercial 2 Zone. Buildings and Works Pursuant to Clause 34.02-4 a planning permit is required for buildings and works on a site in Commercial 2 zone |
|
Clause 43.01 Heritage Overlay, Schedule 289 HO289 Southern Cross Hotel (78 Cecil Street) |
§ Pursuant to Clause 43.01-1 a planning permit is required to demolish a building and construct a building or construct or carry out works on a site affected by a Heritage Overlay.
|
|
Clause 43.02 Design and Development Overlay, Schedule 8 (DDO8) |
§ Pursuant to Clause 43.02-2 a planning permit is required for buildings and works on a site affected by a Design and Development Overlay.
|
|
Clause 52.06 Car Parking
|
§ Pursuant to Clause 52.06-1, a new use must not commence until the required car spaces have been provided on the land. § The table at Clause 52.06-5 sets out the number of car spaces required for particular land uses. Office 3 spaces to each 100sqm of net floor area Food and Drinks Premises 3.5 spaces to each 100sqm of leasable floor area Supermarket 5 spaces to each 100sqm of leasable floor area Shop 3.5 spaces to each 100sqm of leasable floor area Hotel 3.5 spaces to each 100sqm of leasable floor area This equates to a requirement of 614 spaces for the office (20,492sqm), 169 spaces for the supermarket (3,394sqm), 21 spaces for the Hotel (615sqm), 8 spaces for the Food and Drinks Premises (247sqm) and 5 spaces for the shops (155sqm). 817 spaces total. 327 spaces are to be provided and therefore the application seeks approval for a reduction of 490 spaces. |
|
Clause 52.34 Bicycle Spaces
|
§ A new use must not commence, or the floor area of an existing use must not be increased until the required bicycle facilities and associated signage has been provided on the land. § The table at Clause 52.34-3 sets out the number of spaces required for particular land use. § This development would require the provision of 73 spaces for staff and 26 spaces for customers/visitors. § It is proposed to provide 232 bicycle parking spaces which exceeds the statutory requirement. |
|
Clause 45.03-1 Environmental Audit Overlay
|
Before a sensitive use (residential use, child care centre, pre-school centre or primary school) commences or before the construction or carrying out of buildings and works in association with a sensitive use commences, either: § A certificate of environmental audit must be issued for the land in accordance with Part IXD of the Environment Protection Act 1970, or § An environmental auditor appointed under the Environment Protection Act 1970 must make a statement in accordance with Part IXD of that Act that the environmental conditions of the land are suitable for the sensitive use. |
8. PLANNING SCHEME PROVISIONS
8.1 Planning Policy Frameworks (SPPF)
The following provisions of the PPF are relevant to this application:
Clause 02 Municipal Planning Strategy
02.01 - Context
02.02 - Vision
02.03 - Strategic Directions
02.04 - Strategic Framework Plan
Clause 11 Settlement
11.03-1S - Activity Centres
11.03-1L - Activity Centres
11.03-1L- 05 – South Melbourne Central Major Activity Centre
Clause 15 Built Environment and Heritage
15.01-1S – Urban Design
15.01-1L-02 - Urban Design
15.01-2L-01 - Building Design
15.01-2L-02 - Environmentally Sustainable Development
15.01-2L-03 - Urban Art Clause
15.03-1S - Heritage Conservation
15.03-1L- Heritage Policy
Clause 17 Economic Development
17.01-1S - Diversified Economy
17.02-1S - Business
17.02-1L- Mixed Use and Office Areas
Clause 18 Transport
18.01-1L- 01 - Land use and transport integration
18.02-4L- 01 - Car Parking
18.02-4L- 02 - Loading Facilities
Clause 19 Infrastructure
19.03-3L - Stormwater Management (Water Sensitive Urban Design)
19.03-5L- Waste and Resource Recovery
8.2 Other Relevant Provisions
Clause 52.06 Car Parking
Clause 65 Decision Guidelines
8.3 Relevant Planning Scheme Amendment/s
The following Planning Scheme Amendment is relevant to this application: Amendment C203port is a municipal-wide amendment, which:
· Implements the Port Phillip Planning Scheme Audit 2018 and the land use and development directions of Council’s adopted strategies and documents, including Act and Adapt – Sustainable Environment Strategy 2018-28, Art and Soul – Creative and Prosperous City Strategy 2018-22; Don’t Waste It! – Waste Management Strategy 2018-28, In Our Backyard – Growing Affordable Housing in Port Phillip 2015-25, and Move, Connect, Live – Integrated Transport Strategy 2018-28.
· Updates the Port Phillip Planning Scheme to comply with Victorian Government changes to planning schemes regarding language, format and structure introduced by Amendment VC148.
· Updates local heritage policy to implement new Heritage Design Guidelines, which provide detailed and illustrated guidance on eleven development themes, informed by extensive consultation undertaken in 2019.
· Introduces new local VicSmart planning provisions to enable quicker assessments of some minor types of planning permit applications.
· Removes eleven Incorporated Documents from the Port Phillip Planning Scheme as they are obsolete.
Amendment C203port was approved with changes by the Minister for Planning and was gazetted on 14 April 2023. There are no transitional arrangements in the adoption of C203port. The Planning Scheme Amendment is policy neutral in respect to the majority of the policy changes where it does not alter the meaning of policy previously in the Port Phillip Planning Scheme. Where it is not policy neutral, it introduces and gives effect to adopted Council strategies and plans, augments policy by filling a known policy gap and/or responds to a recommendation of the Port Phillip Planning Scheme Audit 2018.
9. REFERRALS
9.1 Internal referrals
The application was referred to the following areas of Council for comment. The comments are discussed in detail in Section 12 and full comments can be found in attachment 5.
|
Internal Department
|
Referral Comments (Summarised) |
|
Strategic Planning |
Comments have been provided from Council’s Strategic Planning Unit that the development of this site is supported being a key strategic site which has the potential to further enhance the vitality of the South Melbourne Activity Centre. The referral comments note that the proposed building retains a similar stepped form to the original application but with an additional height increase. The additional height is supported being consistent with approved development in the area (including the spotlight centre) and being generally consistent with some early direction within the new South Melbourne Structure plan which is currently being consulted on. The referral comments note that the massing of the building towards Market Street protects the northern façade of the South Melbourne Market and adjoining public realm from overshadowing. The specific overshadowing control in the DDO is highlighted in the referral comments that being that new buildings on the northern side of York Street must not diminish sunlight access to the southern footpath (up to 6 metres from the property frontage) between 11am and 2pm 21 June. Clarification has been sought on the back of house facilities and amenities for the food and beverage tenancies on the ground floor. Comments have also been provided on the proposed public ream works where the works are generally supported but the potential commercialisation of the public realm is something that is not supported. Planners Comments Council’s Strategic Planning unit is generally supportive of the proposal. An assessment of the proposal against planning policy and the relevant planning controls is provided in section 12 of this report. |
|
Urban Design
|
Council’s Urban Design have provided comments that the proposed amendment is supported noting that the proposed increase in scale and density is considered an appropriate response to this key strategic site within the South Melbourne Activity Centre. There is particular support for tower massing, with articulation elements and external shade elements and the articulated and stepped street wall which would provide appropriate human scale and rhythm to the streets. Council’s Urban Designer is also supportive of the pedestrian entries around the perimeter of the site with the two anchor uses (office and supermarket) and the travelators which are well located to serve both the South Melbourne Market and the supermarket. The public realm works that have been proposed are considered to be a significant improvement on the current approval, but it is noted that for the public realm works to be successful further detail and coordination with Council is required. While there is overall support for the proposal, Council’s Urban Designer has included several recommendations to be included as conditions of any approval. These recommendations are as follows: · For public realm design recommendations, refer to the landscape architect referral. · To maintain architectural integrity for this significant project, architects Woods Bagot should be retained for design development and construction stages. · Detailed architectural drawings should be submitted for: o Facade details: including external sun shading, street wall articulation, integrated planters and seat details, architectural integration of service enclosures and loading bays, and footpath awnings. o Integrated lighting for facade and footpath awnings, as may be required as part of public realm lighting review. o Detailed drawings of the office tower cantilever over heritage pub: including structural elements and soffit treatment and new walls to the rear of the pub. · The footpath awnings design should include a higher level of pedestrian weather protection and capturing rainwater. · Demonstrate that the small ground floor tenancies have adequate back of house service areas and customer amenities. · Supermarket windows should remain clear and unobstructed by advertising and other coverings. · Integrated building signage plan to be submitted. Planners Comments Council’s Urban Designer is generally supportive of the proposal subject to conditions. The recommended conditions include the following: · A requirement for detailed architectural drawings of the façade details, lighting, and the tower cantilever over the heritage pub (78 Cecil Street). · Details of the awning design over the footpath to ensure adequate weather protection for pedestrians. · Details of the back of house services for the small ground floor retail and food and drinks tenancies. · Details of integrated signage for the development. An assessment of the building design its impact on the surrounding area and consideration against the relevant planning controls will be provided in section 11 of this report. |
|
Landscape Architect
|
The referral comments from Council’s Landscape Architect have addressed the onsite landscaping for the actual development as well as comments on the proposed public realm works. A summary of the referral comments on both these aspects of the proposal are provided below: On site landscaping Council’s Landscape Architect has provided comments that the intent of the proposed landscaping scheme is supported but not enough detail has been provided to offer full support. The referral provides guidance on the specific information that is not as detailed as required. This includes Depths, widths, and species for all private realm planters Further design resolution for the upper terraces to improve function, amenity, and integration with building Demonstration integration with WSUD initiatives changes to the wall seating and window serveries to ensure unimpeded pedestrian circulation, including for people with disabilities. A Landscape Plan has been asked on any amended permit that is issued and that the Landscape Plan include the following: · Material and Surface Finishes – Layout of surface finishes and materials on a plan. · Planting Schedule – include mature size (h and w), common name, botanical name, installation size. Species should be indigenous and respond to site conditions. · Deep Soil Plans – should show soil depths for in ground and upper levels include soil depths for all planters 1000mm min for planters with trees and 550mm for planters with plants only. · Details – showing construction of planters and all other finishes including drainage. · Irrigation plan. · Sections – showing key sections of ground floor and upper levels including footpaths on Market, Cecil, York, and Northumberland Street. · Material Palette – palette of proposed material and finishes. Public Realm Works Comments have been provided on the various public realm works that have been proposed noting which works are supported, which require further detail and coordination with Council and which works are not supported. This has been summarised below: Supported · Undergrounding of powerlines. · New public lighting - New and upgraded lighting should be integrated into public realm design, including as part of new pedestrian crossing, under footpath awnings, pergola structures and as part of Northumberland shared zone. · The removal of the crossovers along Cecil Street and replacement with landscaping. · The provision of urban art within the public realm landscaping. Further detail and coordination with Council · Integrated wall seating adjacent the public footpath on Cecil Street is supported but needs to be designed and coordinated to ensure unimpeded pedestrian circulation, including for people with disabilities. · Window shopfront serveries need more details to ensure their use does not block public circulation with queuing. · There is an opportunity to provide sheltered seating at the forecourt entrance to the supermarket lobby. · Pedestrian crossing point on York Street (mid-block) is supported and the implementation should be coordinated with South Melbourne Market Project Connect project. · Northumberland Street – proposal to be a shared space is supported. Requires further details and coordination, including paving, lighting, tree planting, coordination with loading bay details and vehicle manoeuvring. Not Supported · Fragmented planting in the public realm is not supported. Excessive 90-degree edge changes can be rationalised to make the edge more functional for pedestrians and planting opportunities · The extent of pergola structures along York Street and Cecil Street verges are not supported as they reduce public pedestrian movement and displace opportunities for infill planting etc. Smaller structures may be supported but they must not interfere with pedestrian circulation street tree planting and public amenities and must be managed though the footpath trading process. The referral comment has summarised the recommendations for the public realm works as follows: · More infill tree planting, planting areas and rain gardens are recommended, across frontages. · Garden bed detailed design should be simplified and consolidated. · Underground existing powerlines along the four adjoining streets, including York, Cecil, Market, and Northumberland Street. · Reduce extent of pergola structures along York Street and Cecil Street frontages. · The York Street pedestrian crossing is supported, and detailed design should include kerb outstand and greenery is recommended. Coordination with South Melbourne Market is also recommended. · Northumberland Street – proposed shared zone is supported, with further details and coordination required, including paving, lighting, tree planting, coordination with loading bay details and vehicle manoeuvring. · Provide new/upgraded public lighting as required to support public realm design · Provide visitor bike and micro mobility parking around the site perimeter at convenient locations, coordinated with building entries and circulation requirements. Planner’s comments Councils Landscape Architect supports the scope of the landscaping works that have been indicated but requires more detail to be provided through the submission of a detailed Landscape Plan. This has been recommended as a condition on any permit that is issued. An assessment of the proposed public realm works is provided in section 11 of this report. |
|
Heritage Advisor
|
Comments have been provided by Council’s Heritage Advisor that overall, the proposed development, on balance, is an acceptable outcome in relation to heritage. Council ‘s Heritage Advisor notes that a key difference with the current scheme is the hotel retains its historic use and a relatively separate identity rather than being awkwardly integrated into the broader development. This is a positive outcome. In regard to the proposed demolition, Council’s Heritage Advisor has commented that while the extent of demolition is significant it is now proposed to retain the 1920’s addition to the hotel, as well as the short return on the south side including the chimney. This will ensure the hotel building maintains a three-dimensional quality. In regard to the impact of integration of the large office building, Council’s Heritage Advisor supports the proposed cantilever design. The comments noting that given the cantilever occupies less than 25% of the airspace and that there is a 6.5m vertical separation the hotel would not be visually overwhelmed. The open foyer on the south side of the hotel is also supported where it assists with the transition between the old and the new. The specific design and the use of the columns and materials is also considered a reasonable elegant solution between the new building and the heritage building. While the proposal is supported, Council’s Heritage Advisor has included recommendations for a detailed demolition method statement and fully measured drawings of the retained sections of the façade (as insurance in case the façade becomes unstable and collapses). It has also been recommended that a condition be included to ensure the original colour scheme of the hotel is reinstated. The suggested condition wording to be as follows: Before the development including demolition commenced the following information, prepared by a suitably qualified consultant must be submitted to the satisfaction of the responsible authority: · An authentic colour scheme for the Southern Cross Hotel based on historic and/or physical evidence. · A schedule of conservation works for the Southern Cross Hotel facades. Planner’s comments Council’s Heritage Advisor is generally supportive of the proposal subject to conditions. The recommended conditions include a requirement for a detailed demolition statement, fully measured drawings of the façade that is to be retained and the reinstatement of the original colour scheme for the hotel building. An assessment of the impact on the heritage building including consideration of the referral comments is provided in section 11 of this report. |
|
Sustainable Design
|
Council’s Sustainable Design officer has provided comments that the amended plans and Sustainable Management Plan (SMP) show that the proposal can achieve a good outcome for environmentally sustainable design. The one outstanding matter that has been raised is a requirement that details of a stormwater treatment strategy be provided including a MUSIC model. It is recommended that a condition be included requiring the endorsement of the Sustainable Management Plan as well as conditions requiring the following: · Implementation Report for Environmentally Sustainable Design · Stormwater Treatment Maintenance Plan · Implementation of Water Sensitive Urban Design Initiatives · Construction Management Water Sensitive Urban Design. Planner’s comments The referral comments are supportive of the proposal subject to stormwater treatment. It is recommended that a condition is include for an updated SMP to address stormwater. The other conditions also are recommended to be included should an amended permit be issued. |
|
Traffic and Parking
|
Council’s Traffic and Parking unit have reviewed the proposal and provided comments. There have been several sets of comments by the Traffic and Parking Unit in account of the various changes that have occurred to the application though the processing of the amendment application. The most recent comments have been provided following the revision to the loading arrangement for the supermarket and revised traffic survey data. The Traffic and Parking unit have provided comments on access and manoeuvring, parking provision, traffic and the loading and waste collection arrangements. A summary of the comments on these various matters is provided below: Access and Manoeuvring The access and manoeuvring for the development have been assessed including the proposed accessways. The comments have not raised any concerns about access and manoeuvring but have noted that the annotation is missing for the clearance height for the two loading bays on Northumberland Street and has been recommended that this be included on any updated plans. The comments have noted that the two way accessway to Market Street, the sight triangles, entry control point and minimum headroom clearances throughout the development. Comments have been provided on the swept path analysis for the loading vehicles where it is noted that the swept path that have been provided are acceptable. It has been noted that the access for the loading vehicles on Northumberland Street will result in the loss of some parking spaces in the street. Parking No concerns have been raised about the parking that would be provided. It has been recommended that visitors for the development should have a minimum free 30 min free parking. Traffic Comments have been provided that the traffic generation rates that have been adopted are considered reasonable based on the case studies provided. These traffic generation rates equate to the following: · 183 vehicle movements during the weekday AM peak · 292 vehicle movements during the weekday PM peak · 232 vehicle movements during the weekend peak hour Comments have been provided that post development analysis of Market Street / City Road and Ferrars Street / City Road can be expected to operate within the practical limit of the intersections following the full development of the site. For the Cecil Street / York Street intersection the comments note that the traffic generated would not be significant from traffic engineering terms but asked for an additional PM analysis of this intersection. It has been recommended that comments be sought from the Department of Transport Planning. Loading Comments have been provided on the three loading areas of the development. Supermarket For the Supermarket the referral confirms that the loading area on Northumberland Street is designed to accommodate vehicles up to and including 12.5 m long heavy rigid vehicles (HRVs) which would involve the following deliveries: · It is anticipated that a maximum of 9 deliveries per day can be expected which includes 6 deliveries from the Distribution Centre and 3 deliveries associated with other delivery vehicles. · Additionally, waste collections associated with the supermarket is expected to be 4 collections per week. · A peak loading demand of up to 11 loading activities can be expected for the supermarket. It is noted that the loading dock has now been redesigned to accommodate a front in / front out access to address previous concerns that were raised. Office and Retail uses For the office and retail uses the referral confirms that a loading/waste area is proposed at the sites northern boundary which can accommodate vehicles up to and including an 8.8 m long medium rigid vehicles (MRV’s). The loading and waste collection is to be as follows: · It is confirmed that loading activities associated with the proposed office use will be limited to milk deliveries and the occasional loading for tenants moving in / out. · It is anticipated that up to 3 deliveries a day can be expected. · Waste collection for this loading dock is anticipated to occur three times a week for each waste stream (waste, recycling and food organics). The loading arrangement is supported but because the loading bay is proposed to be a reverse in arrangement it is recommended that a Loading Management Plan be prepared for this loading bay. Retail uses For the other retail uses near York Street a small loading bay is proposed which would accommodate vehicles of a size and up to and including 6.4 m long small rigid vehicles (SRV’s). The loading for these retail tenancies would be limited to waste collection once a week and deliveries using small vans. No concerns have been raised though again a loading management plan has been recommended. Planner’s Comments The proposal has been generally supported by Councils Traffic and Parking unit subject to conditions. The recommended conditions seeking details of the clearance heights of loading vehicles to be included on the plans, to allow 30 min free parking for visitors and loading management plans for the four different loading bays. An assessment of the traffic, parking and access / manoeuvring associated with the development including consideration of the referral comments is provided in section 11 of this report. |
|
City Permits / Footpath Trading
|
Comments have been sought from Council City Permits team given the proposed works near and within the footpath trading area and the public realm. The following comments have been provided by the City Permits Unit: Bench style seating against the business line Patron legs tend to hang into the pedestrian zone creating obstacles for visually impaired pedestrians. The result is that they are not able to navigate a straight path of travel and is contrary to council’s interpretation of DDA which requires building lines to remain clear as much as possible. Servery windows: Any servery window where customers are required to wait outside of the business for their order to be prepared, should have a designated queueing/waiting area within the trading zone. This may result in a reduction in any outdoor seating, to allow for the queuing zone. Glass screens Must not exceed 1500mm in height. Seating style All tables should be wheelchair friendly (ie: a customer should be able to wheel their chair under the table so that they are able to sit flush against the table. Pergola structures Concerns regarding large pergolas on council land (ie: privatising large amounts of council land for commercial gain). Council supports weather protection via the use of removable umbrella. Any fixed pergola type structure needs to be considered via a detailed assessment. Ongoing maintenance is required to ensure plantings, festoon lights etc are maintained and safe. Pedestrian zone and kerb zone Must remain clear at all times in accordance with our Footpath Trading Guidelines. Bike hoops Require clearance of 1.0 metres before any outdoor trading can be considered. Planners Comments An assessment of the proposed public realm works is provided in section 11 of this report. |
|
Waste Management
|
Council’s Waste Management Coordinator has provided comments that they are generally satisfied with the submitted Waste Management Plan and waste management for the development but noted the following: · 660L bin for Organic waste can be extremely heavy so might want to consider max 240L bins instead. · For development of this size and type might hugely benefit from having a commercial dehydrator or similar equipment for organic waste · Please nominate responsible party/role for the management of waste rooms and equipment including the cleaning and removal of any hard waste/E-waste material from the development. · Please note the collection times in the WMP Planners Comments Councils Waste Management Coordinator is generally satisfied with waste management for the development. The outstanding matters that have been raised are minor matters which can be addressed in the submission of a revised Waste Management Plan (Recommended amended condition 11) |
9.2 External referrals
|
Referral Authority |
Response |
Conditions |
|
Department of Transport (DoT)
|
The head of Transport for Victoria has provided a letter (dated17/01/2024) that pursuant to Section 56(1) of the Planning and Environment Act 1987 it does not object to the grant of an amended planning permit. |
N/A |
|
VicTrack |
VicTrack has reviewed the location of the proposal and notes that the permit application site is separated from the rail corridor by significant amount of land and is approximately 115 metres away. As there is no direct interface with the rail corridor, VicTrack land is not considered to be impacted. On this basis, VicTrack has no objection to the granting of a planning permit. |
N/A |
10. PUBLIC NOTIFICATION/OBJECTIONS
10.1 It was determined that the proposal may result in material detriment therefore Council gave notice of the proposal by ordinary mail to the owners and occupiers of surrounding properties (606 letters) and directed that the applicant give notice of the proposal by posting 8 notice(s) on the site for a 14 day period, in accordance with Section 52 of the Planning and Environment Act 1987.
10.2 The application has received 16 objections. The key concerns raised are summarised below where the concern will not be addressed in Section 11:
|
Application is a transformation of the current approval and should be lodged as a new application |
|
Several objections have raised concerns that due to the significant scope of the changes and that the proposal includes new land uses (supermarket and car park) it should not be considered under an amendment application but rather a new planning permit. Planners Comment The concerns raised are matters that have been fully tested in the Supreme Court where it has been found that the scope by which a planning permit can be amended is not limited under Section 72 of the Act. The Supreme Court case Mondib Group Ltd v Moonee Valley City Council [2021] VSC 722 (5 November 2021) found that S72 does not confine or limit the extent which an existing permit can be amended. Thus, a planning permit can be amended even where the amendment may substantially vary the permission originally granted under the permit. |
|
Decentralization of Clarendon Street |
|
Several objections have raised concerns about the impact that the development would have on taking away from the vitality and importance of Clarendon Street as the main economic area of the South Melbourne Central Activity Zone. The concern related mainly to the proposition for another supermarket that would be located away from Clarendon Street. Planners Comment It is noted that the proposed supermarket is a section 1 (permit not required) use in the commercial 1 zone. As such, there is no planning permit consideration required about the intended use. It is the type of use that is actively encouraged by the Planning Scheme and planning officers do not have any discretion to consider the appropriateness of this aspect of the proposal where it is an as of right use in the zone. Nevertheless, the applicant has submitted an Economic Report that provides an assessment on the high-level economic benefits and disbenefits of the proposed development. The economic report finding that the proposed development would provide a clear positive net community benefit where any disbenefit would be confined to the sales of the other full line supermarkets in the area. The Economic report noting that the proposed full line supermarket would not directly compete with the existing Coles Local store on Clarendon Street which are differentiated from full line supermarket where they cater to nearby residents, office workers and smaller basket sized shoppers. The Economic report also noting that the proposed office would have a significant impact on bringing in a large increase in employees which is estimated would increase the employment base within the heart of South Melbourne by 30 percent. |
|
Built form concerns / bulk, scale design / noncompliance with the Design and Development Overlay |
|
Several objections have raised concerns about the scale and design of the building and that the proposal is more significant that the built form requirements of the Design and Development overlay that affects the subject site. Planners Comment Built form, design and the requirements of the DDO are considered in detail the assessment of the application in Section 11 of this report. |
|
Impact on Heritage |
|
Concerns have been raised about the impact of the development on the heritage significance of the heritage building which is an old hotel / pub building at 78 Cecil Street. Planners Comment The application has been referred to Council’s Heritage Advisor who has provided comments that subject to conditions they do not object to the proposal. Detailed consideration about the impact on the heritage significance of the heritage building as 78 Cecil Street are provided in section 11 of this report. |
|
Traffic and Car Parking |
|
Several objections have raised concerns about the impact of the development on traffic in the area. Objections have also been received about the lack of car parking for the development Planners Comment A detailed consideration of the traffic and parking impact associated with the development are provided in section 11 of this report. |
|
Traffic impacts on Northumberland Street, particularly loading for the supermarket |
|
Several objections have raised concerns about the traffic impact on Northumberland Street. Planners Comment A detailed consideration of the traffic impacts in Northumberland Street are provided in section 11 of this report. |
10.3 A consultation meeting was held on 24 October 2023. The meeting was attended by the Ward Councillors, applicants, objectors and Planning Officers. The meeting did not result in any formal changes to the proposal. However, following the meeting the applicant has investigated the proposed loading arrangement to the Supermarket which is now proposed to be changed so that loading vehicles would enter and exit the loading area in a forward direction (as shown on a set of Revised Plans). This is discussed further in this report.
10.4 It is considered that the objectors do not raise any matters of significant social effect under Section 60 (1B) of the Planning and Environment Act 1987.
11. OFFICER’S ASSESSMENT
11.1 The amendment seeks to make several changes to the permit, plans and consequently what was approved by the original planning permit. The most notable changes being the incorporation of a Supermarket and Commercial Car Park, a redesigned building including additional levels with a new form and design and the addition of the properties at 78 Cecil Street and 166-170 York Street.
11.2 Because this is an application to amend the existing planning permit, only the proposed changes can be assessed.
11.3 The key issues that require assessment are considered under the following headings:
· Would the amendment proposal remain consistent with the planning policy framework?
· Is the commercial car park use in the commercial 1 and 2 zones appropriate?
· Would the amended building comply with the relevant built form policy and requirements?
· Are the public realm works appropriate?
· Would there be any additional off-site amenity impacts?
· Would the proposal have any unreasonable traffic impacts?
· Would sufficient car parking and bicycle parking be provided and is the layout appropriate (including the loading bay)?
· Would the amended development provide an acceptable response to Environmental Sustainable Design requirements?
· Would the amendment alter any specific requirements of the original permit?
11.4 These questions are considered in turn below.
Would the amendment proposal remain consistent with the planning policy framework?
11.5 The delegate report for the original application detailed that there was state and local policy support for a significant office development in this location. The delegate report referring to state and local policy provisions to locate commercial facilities in existing or planned activity centres and to encourage businesses that cater for the growing demand in the property and business services, cultural and recreation services, printing, publishing, and media services.
11.6 While the specific policy references have changed (due to Planning Scheme amendment C203port), the policy content remains the same where the new clauses 11.03-1S, 11.03-1R and 11.03-1L-01 sets out support for the concentration of large commercial development to activity centres. The Planning Scheme also retains the same local strategies for the South Melbourne Central Activity Centre where there is a strong policy emphasis to support the existing commercial base of South Melbourne in business services and light industry and the expansion of the area as a location for knowledge based and creative industries.
11.7 The proposal to expand the office floor area (increase of 5,492sqm) add a supermarket and more retail on the ground floor measures favourably with planning policy. The subject site is an ideal location for a large commercial development given its prominent position within the South Melbourne activity centre, where complementary land uses are found and there is excellent access to public transport.
11.8 The amended proposal is also supported by local policies for South Melbourne where the intensification of the use would help support the local economy of South Melbourne and provide employment. The large area of office space that would be provided in the amended proposal would be particularly beneficial in providing opportunities for the expansion of high technology / knowledge based industry business which is a key strategy to help ensure South Melbourne Central continues to build and prosper in the future.
11.9 The delegate report for the original approval also set out that the original approval measured favourably with planning policy for active, vibrant ground floor frontages for development in office and mixed activity areas and South Melbourne Central. The amended proposal would continue to meet this policy direction where retail and food/drinks premises would be provided along all main street frontages. Activity and vibrancy would also be enhanced by the design of the building where it would provide large entrances, substantial glazing and uses that will flow between the private and public realms. A range of public realm works are also now proposed along the York and Cecil Street frontages which would further enhance the connection of the development to the public realm.
11.10 Planning Policy for the built environment sets out the importance of high quality design that respects the character of the area and which contribute to the sense of place and identity. A detailed assessment of the modified building will be considered further in this report, including consideration of the specific policy for the South Melbourne Central and in particular the provisions of DDO8.
Is the commercial car park use in the commercial 1 and 2 zones appropriate?
11.11 The amended proposal requires approval for the use of part of the site as a commercial car park. The car park use that is proposed is the car park on basement level 03 (132 spaces) and part of the car park on level B2 (52 spaces). The other car park areas would be allocated for the proposed office use. As set out in the submitted Town Planning Report the commercial car park is proposed to be generally used by customers of the supermarket. It is understood that the reason that a commercial car park is proposed is to allow flexibility to provide car parking outside of customers for the supermarket. The applicant has indicated that this type of arrangement is not uncommon for large developments where there are several different land uses in the same development. The applicant indicating that the Victoria Gardens Shopping Centre in Richmond is a good example of this type of car parking arrangement.
11.12 It is considered that the part use of site for a car park that would be mostly available for customers of the supermarket would complement the nearby land uses and have a positive impact in providing additional car parking in an area where there can be high demand for parking at certain times. As such, the part use of some of the site for a commercial car park is supported.
11.13 The submitted planning report indicates that access to the commercial car park may be granted free of charge for a limited stay for customers to the car park. In order to ensure that the development would provide sufficient parking for the supermarket use limited car parking must be made available for free for customers of the supermarket. To ensue this is the case it is recommended that, should an amended permit be issued, existing condition 24 is amended to require car parking in the commercial car park to be free for customers of the supermarket for a period of 2 hours (refer amend condition 24).
Would the amended building comply with the relevant built form policy and requirements?
11.14 Since the original planning permit was approved there has been a change in the consideration of the requirements of Design and Development Overlay 8 that affects the site. The key VCAT decision on this was the VCAT decision 134 Moray St Pty Ltd v Port Phillip CC (Corrected) [2018] VCAT 1831. In this decision VCAT determined that the DDO8 controls are not mandatory, despite Council’s intention when drafting DDO8 and how the controls have been applied previously. Paragraph 83 sets out VCATs determination on this matter which has been copied below:
83. We think a preferable approach in the circumstances is to treat the Requirements in DDO8-7 (and the relevant overarching part of DDO8) as being discretionary in nature and able to be varied with a planning permit. This provides the decision maker with discretion to allow an alternative design response if it is appropriate in the context of the site and its surrounds, but within the framework of what the Scheme is seeking in terms of Preferred Character, Design Objectives and the substance of the Requirements themselves.
11.15 A comprehensive review of the South Melbourne Central Structure Plan (SMCSP) is being undertaken which will ultimately lead to an amendment to DDO8; this is intended to remove any doubt as to which requirements are mandatory and discretionary and reviews the built form controls themselves. However, any planning scheme amendments in this regard will be over a year away.
11.16 In the interim, Council must be guided by the Tribunal’s findings in 134 Moray St Pty Ltd. Accordingly, the following assessment against the DDO8 refers only to design requirements and not whether they are mandatory or discretionary. Where a requirement has not been met, a merits assessment of whether the general and specific design objectives and decision guidelines would be met is relevant and has been undertaken.
11.17 Broadly, the DDO8 seeks to ensure that new development achieves an acceptable level of design excellence in the precinct that contributes to the quality and amenity of the South Melbourne Central Major Activity Centre with specific emphasis on the public realm.
11.18 The overall design objectives outlined in the Design and Development overlay seek to provide the following:
· High quality, well designed new development
· Development that respects the hard edge character of the area
· Retain the variety of spatial experiences of South Melbourne Central
· Ensure the sense of openness and sky visibility of the wide main streets
· Ensure built form does not unreasonably diminish sunlight access, particularly to key routes
· Ensure development that is respectful to existing heritage
· Maintain the distinction of South Melbourne Central as characterised by low to medium rise buildings
· To emphasise the edges of South Melbourne Central along Kings Way and north and west of City Road with higher built form
· To ensure environmentally sustainable development
· To ensure adequate noise protection for future residents in new residential development
11.19 These overall design objectives are carried through in the character statements and design objectives detailed for the different precincts that make up the Design and Development Overlay. The subject site sits within two precincts, Precinct 2 - Emerging Activity Precinct and Precinct 8 - Western Business Precinct. The character statement and design objectives for the two precincts can be grouped into 6 key design goals, these being high quality design, sunlight access, visual consistency / sense of streetscape enclosure, pedestrian experience and activity and landscaping.
11.20 The development that has been proposed in the amendment application measures favourably against the character sought for South Melbourne Central and the design objectives detailed in the Design and Development Overlay.
11.21 The new proposal is considered of high quality, designed by an experienced and well respected architectural firm. A detailed design response has been provided in the rationale of the design. This has included a strong emphasis to provide an active and attractive building at both the podium and tower. For the design of the podium there is a strong focus to provide activity and enhance the pedestrian experience. For the design of the upper form above the podium, there is a design rationale to ensure the building would provide a positive contribution to the area when viewed from longer views back towards the site.
11.22 The most notable changes in the new amendment application are the larger scale of development and its more modulated appearance. In regard to the scale, it is proposed to increase the size of the building from 8 storeys to 10 storeys with an increase in height of 13.82m. At 10 storeys the proposed building would match the scale of other development on the northern side of York Street including the Spotlight building at 103 -133 Cecil Street and the building developed at 85 – 87 Market Street / 108 - 112 Market Street. Council’s Strategic Planning unit and Urban Designer have reviewed the proposal, and both provided comments that support the scale of the amended design. In the referral comments from Council’s Urban Designer, it is stated that the proposed increase in scale and density is considered an appropriate response to this key strategic site within the South Melbourne Activity Centre.
11.23 The other key changes in the design of the new building are to the treatment of the podium and setbacks provided to the tower. At the podium level, a more modulated form has been proposed where recesses have been incorporated to create the appearance of a series of individual structures within the podium. This is quite different from the strong horizontal design language used in the original approval which did not incorporate any vertical breaks or recesses along the podium and provided long horizontal canopies in the design. The change to the podium is considered to be an improvement over the previous design where the addition of the breaks and more modulated appearance would create a finer grain of scale, materiality and texture. This would better reflect the fine grain scale of traditional development in South Melbourne and provide a much more human scale to the development where the massing of the very long frontages would be broken up into more individual sections.

Fig 4: A section of the proposed podium that would be visible from Cecil Street. Source: Application Design Response
11.24 Changes have also been made to the design response for the upper levels. The new building has been designed to step back from the south, like the approved design, but also to lessen stepping in from the sides of the building. The result would be to create a more visually interesting upper level form that moves away from the “wedding cake” appearance which is prevalent in South Melbourne Central and has been criticised for its obtrusive visual impact which fails to reflect the traditional built form character of the area.
|
|
|
Fig 5: Model and render from Design Response showing the treatment to the upper levels of the building. Source: Application Design Response
11.25 The referral comments from Council’s Urban Designer were supportive of the changes to the tower massing and articulation as set out in the referral comments copied below:
The tower massing, with articulation elements and external shade elements, is supported. The articulated and stepped street wall provides appropriate human scale and rhythm to the streets. The distribution of pedestrian entries around the perimeter of the site is supported, with the two anchor uses, office and supermarket. The travelators provide connection from the basement public car park to the ground floor corner of York and Cecil Streets, which is well located to serve both the South Melbourne Market and the supermarket.
11.26 The proposal also measures favourably against the character statements and design objectives outlined for precincts 2 (Emerging Activity Precinct) and 8 (Western Business Precinct).
11.27 Importantly, the proposal complies with the overshadowing requirement which seeks to protect the southern footpath of York Street and the amenity of the South Melbourne Market. The design response details that the starting point in the design of the new building was for it to be located within a shadow plane modelled to ensure that it would not diminish sunlight access to the southern footpath (up to 6 metres from the property frontage) between 11am and 2pm on 21 June. The submitted architectural plans include detailed shadow plans (plan no’s A-TP9701, A-TP9702, and A-TP9711) which show compliance with the overshadowing requirement for June 21 between the hours of 11am and 2pm. This is shown through sectional shadow diagrams that are provided on plan no A-TP9711.
11.28 The building has also been designed with an active and engaging ground floor layout to enhance the pedestrian experience and would provide landscaping along the key streets to further enhance the public realm. On the key pedestrian streets of York and Cecil Street, activity would be provided along the entire ground floor on both sides of the building. On the corner of York and Cecil streets, the main entrance to the supermarket would be provided with a range of smaller retail of food and drinks tenancies to be provided down both York and Cecil Street. The active ground floor uses that would be provided includes the proposed reinstatement of the Southern Cross Hotel as a hotel building.
11.29 The strong emphasis on active ground uses is clearly shown in submitted Design Response. The diagram below taken from the Design Response clearly shows the range of active ground floor uses that would be provided and the actual direct access that will be provided between the building and the street.

Fig 6: Diagram showing ground floor uses and direct connection of the proposal to the street. Source: Application Design Response
11.30 It has also been designed to provide a definitive street wall form that provides the sense of streetscape enclosure sought by the Design and Development overlay. Along Cecil Street, the street wall, would be higher than the 3 storey street wall (in part) sought by the Design and Development Overlay. Given the unique features of the site, the more irregular street wall that would be provided along this side of the building is considered an appropriate built form response. It would strike the right balance to provide a definitive street wall form, a suitable acknowledgement of the three storey street wall sought by the DDO but also introduce the variety needed to break up the long façade.
11.31 As stated earlier, Council is currently undertaking a review of the South Melbourne Central Structure Plan (SMCSP) is being undertaken which will ultimately lead to an amendment to the current design and development overlay. A draft South Melbourne Structure Plan has been prepared for community and stakeholder consultation. The draft plan has identified the subject site as a larger site where there is potential for buildings of higher scale where a height up to 12 storeys and 40 metres has been identified for the site. The proposed amended design proposes a building at 10 storeys and 39.6 metres which corresponds to the scale of buildings identified in the draft structure plan.
11.32 Overall, the amended proposal is considered a high-quality architectural building, designed to respond to the important character and design attributes identified for South Melbourne Central and which would have a positive impact on the surrounding area.
11.33 A full assessment against the character statements and design objectives for precincts 2 (Emerging Activity Precinct) and 8 (Western Business Precinct and the specific requirements is included in attachment 4.
Are the Public Realm works appropriate?
11.34 The amendment application has proposed a range of public realm works in association with the redevelopment of the site. The public realm works consist of integrated public seating into the building, proposed undergrounding of powerlines, public lighting, removal of vehicle crossovers on Cecil Street and reinstatement of car parking spaces, a series of pergola structures in the nature reserve on York and Cecil Street, a new pedestrian crossing point on York Street (mid-block), and the transformation of Northumberland Street into a shared space for vehicles and pedestrians.
11.35 The public realm works that have been proposed are an opportunity to improve the quality of the public space around the subject site. However, there are some concerns about the feasibility of some of the works and the extent that some of the works go too far in beginning to privatise some of the public space.
11.36 Council’s Urban Designer and Landscape Architect have reviewed the public realm works that have been proposed and provided a set of recommendations on the proposed works. These recommendations are set out in the referral comments that were provided by Council’s Landscape Architect and are copied below:
· More infill tree planting, planting areas and rain gardens are recommended, across frontages.
· Garden bed detailed design should be simplified and consolidated.
· Underground existing powerlines along the four adjoining streets, including York, Cecil, Market, and Northumberland Street.
· Reduce extent of pergola structures along York Street and Cecil Street frontages.
· The York Street pedestrian crossing is supported and detailed design should include kerb outstand and greenery is recommended. Coordination with South Melbourne Market is also recommended.
· Northumberland Street – proposed shared zone is supported, with further details and coordination required, including paving, lighting, tree planting, coordination with loading bay details and vehicle manoeuvring.
· Provide new/upgraded public lighting as required to support public realm design
· Provide visitor bike and micro mobility parking around the site perimeter at convenient locations, coordinated with building entries and circulation requirements
11.37 These recommendations are generally supported by planning officers with the exceptions of the new pedestrian crossing on York Street and the conversion of Northumberland Street into a shared pedestrian and vehicle zone. Both the new pedestrian crossing and the conversion of Northumberland Street into a shared zone would positive improvements, but it is considered that the complexities involved in delivering these works mean that they fall outside of what can be approved as part of this amended permit. Council will continue to work with the permit holder to deliver these works, but it would be outside any approval of the amendment application.
11.38 For the other remaining recommendations, it is considered that these could be delivered through the adoption of a Public Realm Works Plan that could be endorsed to form part of the amended permit. It is therefore recommended, that should an amended permit be issued a condition is included which requires a Public Realm plan to be prepared by the applicant and approved to the satisfaction of the Responsible Authority. The Public Realm Works Plan will be generally in accordance with works shown on the submitted ground floor plan but modified to include the following changes:
· Provide details of infill tree planting, planting areas and rain gardens with additional landscaping to be provided from that shown on the ground floor plan. New planting species to be confirmed by Council.
· Details of the garden bed with design to be simplified and consolidated.
· The removal of pergola structures along the York Street and Cecil Street frontages, to be applied for separately under street trading.
· Details of the proposed new/upgraded public lighting, including a lighting design to demonstrate that all proposed lighting arrangement complies with relevant Australian Standards.
· Undergrounding of powerlines including all frontages and north eastern and south eastern corners of Northumberland Street.
· Details of the visitor bike and micro mobility parking around the site perimeter at convenient locations, coordinated with building entries and circulation requirements.
· Details of all paving and footpath treatments including details of the treatment of level changes. Pedestrian access must comply with the Disability Discrimination Act 1982.
It is recommended that the new condition be separate from the existing condition 3 which requires a public realm upgrade of Northumberland Street. Condition 3 was included by VCAT as part of a settlement position that was reached and as such it is recommended this should not be modified in order to ensure that the works that were agreed to for Northumberland Street in the settlement are delivered. The new proposed condition is recommended to be new condition 37.
11.39 To ensure the delivery of the approved public realm works, a S173 Agreement would need to be entered into by the owner. For this application, there is already a condition (condition 4) on the permit which requires the owner to enter into a S173 agreement to deliver the Northumberland public realm upgrade. It is recommended that condition 4 be modified to include the other public realm works that are not in Northumberland Street (Recommended amended condition 4).
11.40 The changes proposed in the amendment application would affect the existing conditions of Northumberland Street. Most notably, the addition of the supermarket and the new loading bay that would be accessed from Northumberland Street would affect several parking spaces and an existing on street loading bay. The existing planning permit already includes a condition (condition 3) which requires the upgrade of Northumberland Street. It is considered that there is sufficient opportunity with this existing condition to address the changes that would need to occur to Northumberland Street. It is noted that the existing condition already includes particular reference to required changes to loading and parking spaces within the street.
Would there be any additional off-site amenity impacts?
11.41 Surrounding land uses do not include any residential use with commercial land uses found across the road on all sides of the subject site. As such the proposal would not include any off site amenity impacts. There are several commercial developments located to the west of the subject site on the opposite side of Northumberland Street. Given the increased height of the amended proposal (from 8 storeys 25.78 m to 10 storeys 39.6 m) the views and shadows from the offices would be more affected by the amended proposal. However, the additional impact on neighbouring commercial development is considered acceptable. As detailed earlier in this report the proposed new building would provide a four / five storey street wall along Northumberland Street which although somewhat higher than the 3 - 4 storey opposite is commensurate to the existing built form character found in Northumberland Street The building will rise up above the street wall but for the reasons already outlined earlier in this report, the proposal for a 10 storey building on what is a significant redevelopment site is considered acceptable.
11.42 The shadow diagrams that were submitted with the application show no additional impact on York Street but changes elsewhere, which are not consequential within the control period of 11-2 on 21 June. The shadow diagrams that were submitted for the original application showed that the building would overshadow the buildings on the western side of Northumberland Street in the morning but that by 1pm there would be no overshadowing impact. The shadow plans submitted with the new application show the same impact. There would be longer shadows cast by the amended proposal in the morning but as the additional overshowing would only affect the roof areas of those buildings on the opposite side of Northumberland Street. As detailed earlier the overshadowing from amended proposal would not affect the south Melbourne market on the opposite side of York Street.
Would the proposal have any unreasonable traffic impacts?
11.43 The submitted traffic report, prepared by Stantec (version D dated 22/12/2023), details that the proposed development is estimated to generate up to 183 vehicle movements during the weekday AM peak, up to 292 vehicle movements during the PM peak and up to 232 vehicle movements during the weekend peak hours. When compared to the traffic generation that was anticipated for the original proposal this is an increase of 31 movements in the AM peak (where it was detailed there would be 152 vehicle movements) and an increase of 159 movements in the PM peak (where it was detailed that there would be 133 vehicle movements). No assessment of traffic generation in the weekend was considered for the original application given the proposal was largely an office development which would not operate on the weekend.
11.44 The traffic report included detailed traffic modelling including modelling of the impact on key intersections near the subject site. The most recent traffic report, version G, was updated with traffic surveys undertaken at the key intersections on Market weekdays and the weekend to ensure it would account for the busiest times when the South Melbourne Market was operating. The traffic report summarising that the modelling that was undertaken indicates that the additional traffic that would be added to the nearby intersections and to the site itself would not compromise the function or safety of the surrounding traffic network.
11.45 Council’s Traffic and Parking unit have reviewed the submitted traffic report and provided comments that the traffic that would be generated would be expected to operate within the practical limit of the Market Street / City Road and Ferrars Street / City Road intersections and that the impact on the Cecil Street / York Street intersection would not be significant from traffic engineering terms. Based on the information provided and the referral comments from Council’s Traffic and Parking unit it is considered that traffic associated with the development would not adversely affect the surrounding street network.
Would sufficient car parking and bicycle parking be provided and is the layout appropriate (including the loading bays)?
Car Parking
11.46 The following table shows the Planning Scheme parking requirements for the development:
|
Proposed Development |
Total Required Parking under the Planning Scheme |
Proposed car parking provided |
Required Variation |
|
Office (20,492 sqm)
Supermarket (3,394sqm)
Hotel (615sqm)
Food and drinks premises (47sqm)
Shop (155sqm) |
3 spaces to each 100sqm leasable floor area for an office = 614 spaces
5 spaces to each 100sqm of leasable floor area = 169 spaces
3.5 spaces per 100sqm of food and drinks premises = 21 spaces 3.5 spaces to each 100sqm of leasable floor area for a shop = 6 spaces
3.5 spaces to each 100sqm of leasable floor area for a shop = 5 spaces Total = 817 spaces |
Total = 327 spaces
|
490 spaces |
11.47 As detailed above the amendment application seeks approval for a reduction of 490 spaces. The reduction that is now being sought is an increase of 289 spaces where the original approval required 471 spaces and provided 270 spaces (reduction of 201 spaces).
11.48 Clause 52.06-7 outlines the decision guidelines for applications to reduce the car parking requirements. The following table will provide an assessment of the application against these requirements.
|
Clause 52.06-7 Decision Guideline |
Assessment |
|
The car parking demand assessment |
The submitted car parking demand assessment has been reviewed and is considered acceptable. |
|
Any relevant local planning policy or incorporated plan |
Not relevant in this instance |
|
The availability of alternative car parking in the locality of the land |
On street parking in the immediate area is highly constrained through on street parking restrictions and demand in an area where many commercial land uses compete for any parking spaces. As such, on street parking is not considered to be consistently available to offset the reduction in parking. A public parking facility is provided within the South Melbourne Market, but all of the parking spaces are used by the South Melbourne Market and parking in the Spotlight development. As such, there is limited availability for alternative car parking in the locality. Whilst this supports the need for more on-site parking spaces it also evidences the limited capacity of the surrounding road network. The provision of more on-site parking would place additional traffic demands on this network and degrade its functional performance. |
|
On street parking in residential zones in the locality of the land that is intended to be for residential use |
Not applicable. |
|
The practicality of providing car parking on the site, particularly for lots of less than 300 square metres |
The site is fully capable of meeting its statutory parking requirements though it would have be done through the construction of additional basement levels. |
|
Any adverse economic impact a shortfall of parking may have on the economic viability of any nearby activity centre. |
The site sits within the South Melbourne Major Activity Centre. It is not considered that the shortfall in parking would have any adverse impact on the activity centre. |
|
The future growth and development of any nearby activity centre
|
The South Melbourne Activity centre is an area that has experience a lot of growth in recent years. In the immediate area where the subject site is located there are not many more significant sites to be developed. It is likely that future development in this area would be limited to small infill development or redevelopment of small sites. As noted above, the surrounding area is heavily constrained in terms of parking availability. A reduction of car parking would be of benefit to the activity centre by only adding a more moderate increase in traffic generation which would be better for the long-term health and viability of South Melbourne Central activity centres. in an area that already can experience adverse impacts from traffic at certain times. |
|
Any car parking deficiency associated with the existing use of the land |
Not applicable |
|
Any credit that should be allowed for car parking spaces provided on common land or by a Special Charge Scheme or cash-in-lieu payment |
Not applicable |
|
Local traffic management in the locality of the land |
Local roads are managed by a mix of City of Port Phillip and the Department of Transport and Planning. The management of roads would be less impacted due to the parking reduction. |
|
The impact of fewer car parking spaces on local amenity, including pedestrian amenity and the amenity of nearby residential areas |
The surrounding area experiences heavy parking demand and traffic. The reduction of parking would reduce the amount of vehicles accessing the site and thus reduce impact on surrounding parking and road performance. This is considered to be positive for local amenity.
|
|
Access to or provision of alternative transport modes to and from the land
|
The site has excellent access to public transport and services. The public transport alternatives that are in close proximity include routes 96, 12, 109 and 1 which all have tram stops in walking distance to the subject site. The 96 route which has a tram stop near the South Melbourne Market runs on light rail providing quick access to and from the CBD. The below map copied from the planning report submitted with the application shows the wide range of public transport that is located near the subject site.
Fig 7: Map of Public Transport in surrounding area. Source: Application Planning Report The site also has excellent access to bicycle infrastructure with on-road and informal bicycle routes on the road network in the vicinity of the subject site, including on both sides of Moray Street, on Dorcas Street and Cecil Street. In addition to public transport and cycling options, there are a number of carshare pods in close proximity to the site. |
|
The equity of reducing the car parking requirement having regard to any historic contributions by existing businesses |
Not applicable. |
|
The character of the surrounding area and whether reducing the car parking provision would result in a quality/positive urban design outcome |
All car parking is provided within the basement, and a reduction in the car parking provision would have little discernible impact on the streetscape presentation of the building or urban design outcomes. |
11.49 The proposed parking reduction is supported. As set out above, the site is located within a highly accessible location in close proximity to transport alternatives. These locational attributes of the site lend strong Planning Policy framework support for the parking reduction as discussed earlier in this report, noting that the large office component represents a cohort more likely to use public transport. Moreover, the reduction of parking for the specific application is considered to be positive in reducing traffic generation. The site is located within a highly developed part of the South Melbourne Central Activity centre. It is highly desirable to reduce parking in order to strongly encourage the use of more active and sustainable transport uptake in the surrounding area. Another further consideration to help justify the car parking reduction is the opportunity that the redevelopment of the site provides to reinstate several car parking spaces along Cecil Street. At present there are six crossings along Cecil Street, and these are all proposed to be removed once the site is redeveloped. With the removal of the six crossings there will be an opportunity to provide at least 9 new on street parking spaces for valuable short term parking.
11.50 In addition to the assessment above, it is important to detail recent VCAT decisions that have considered reductions of car parking for commercial development. Council has not refused many applications on car parking grounds but where they have VCAT have supported the reductions being sought. The most recent VCAT applications where car parking was an issue in dispute include the following:
|
Salerno Pty Ltd v Port Philip CC [2021] VCAT 259 (30 March 2021) This appeal relates to a commercial application (food and drink premises, offices) on the land at 34-40 Eastern Road, South Melbourne on a site which is 600m from the subject site. This is the only VCAT appeal for an application in the South Melbourne Central activity centre where parking for a commercial development was in dispute. The application proposed a reduction in the rate of car parking required under Clause 52.06 by 85 spaces. The reduction was not supported by Council, however, was ultimately supported by VCAT given the site’s proximity to public transport facilities, the excess provision of bicycle storage spaces and end of trip facilities, the lack of supply of long term car parking spaces in the immediate area, and the site’s location in an area where workers and visitors should be encouraged to use transport modes other than the private vehicle. Whilst the proposal at 34-40 Eastern Road is not exactly the same as the subject application, the context is similar, the provision of excess bicycle parking and end of trip facilities is consistent in both applications, and the reasons given by VCAT for supporting a reduction of parking are considered relevant to the subject application. Acme Co No 4 Pty Ltd v Port Phillip CC [2021] VCAT 588 and Frater Lactus Pty Ltd v Port Phillip CC [2021] VCAT 564 (3 June 2021) These are two appeals related to commercial applications where car parking was a matter in dispute. The two applications are not within South Melbourne Central but in the Domain area of South Melbourne. Both applications were for office development. The Acme Co No 4 Pty Ltd v Port Phillip CC decision relates to an office development at 412 St Kilda Road which supported a reduction of 533 spaces. The Frater Lactus Pty Ltd v Port Phillip CC decision relates to an application on the land at 9 - 11 Palmerston Crescent, South Melbourne which proposed an office development where a reduction of 122 car parking spaces was sought. In both cases VCAT supported the reduction of car parking given the rich public transport options that were available |
11.51 These VCAT decisions provide further weight to support the reduction in car parking that is being sought in the amendment application.
Access and Manoeuvring
11.52 Four separate access points are proposed to access the car parking, loading and waste areas. The main vehicular access point will be from Market Street where a double width access way would provide access to the three basement levels (321 spaces). Loading and waste collection for the office component of the development would be provided in a 151sqm loading area that would be accessed from Market Street (next to the main vehicular access point). The loading area for the supermarket would be provided in an area that would be accessed from Northumberland Street where a loading bay for a 12.5m long heavy rigid vehicles (HRVs) would be provided with access designed to allow vehicles to enter and exit in a forward direction. Another small separate loading area would be provided in the southwestern corner of the development which would provide loading for the retail and food and drinks tenancies along York Street.
11.53 Council’s Traffic and Parking unit have assessed access and manoeuvring associated with the development and provided comments that have not raised any concerns about access and manoeuvring for the development. Based on the review by Council’s Traffic and Parking unit the access and manoeuvring for the development is considered acceptable. Councils Traffic and Parking Unit have confirmed that the swept path analysis provided demonstrates adequate access for a HRV into the subject site via Cecil/York Street.
Loading
11.54 Council’s Traffic and Parking unit have assessed the loading arrangements for all four loading areas. Initial comments from the Traffic and Parking unit raised concerns about the access into the supermarket loading bay where the loading vehicle would have to reverse into the loading bay.
11.55 In response to the concerns, plans have been provided which show a redesigned supermarket loading bay where the loading vehicle would be able to enter and exit in a forward direction. When the Revised plans were provided an updated Traffic report was submitted which confirmed that a maximum of 9 deliveries per day can be expected for the supermarket which would consist of 6 deliveries from the Distribution Centre and 3 deliveries associated with other delivery vehicles. In addition, waste collection for the supermarket would be 4 collections per week and that the peak loading demand would be 11 loading activities.
11.56 Comments have been provided from Council’s Traffic and Parking unit that the loading arrangements for the supermarket are considered reasonable. The referral comments stating that the changes shown on the revised plans where the loading dock has been redesigned to accommodate a front in / front out access has addressed the concerns that were previously raised.
11.57 Should a permit be issued, it is recommended that a condition is included which requires amended plans which show the redesigned loading arrangement on the plans submitted for consideration (recommended new condition 1o). Council’s Transport and Parking unit have also recommended loading management plans for all three loading areas. Should a permit be issued, it is recommended that a condition is included for a loading management plan that provides management details for all three loading areas (recommended new condition 42). The loading management plan to provide details of the following:
· Details of deliveries and waste collection frequency per week. Deliveries and waste collection for the supermarket must not occur during the operating hours of the South Melbourne Market.
· Distinct footpath pavement material to clearly identify pedestrians as priority.
· Provision of pedestrian warning lights and cautionary signages.
· A spotter to be onsite to guide trucks reversing into the loading bay.
Waste Management
11.58 The submitted Waste Management Plan (WMP) prepared by MGA Traffic Pty Ltd dated 8 August 2023 has been assessed by Council’s Management Coordinator who has provided comments that waste management for the development is generally acceptable. The following matters have been recommended to be addressed in an updated WMP to be endorsed as part of any approval:
· The 660L bin for organic waste to be replaced by max 240L bins instead
· A commercial dehydrator or similar equipment should be provided for organic waste
· Need to nominate who is responsible (party/role) for the management of waste rooms and equipment including the cleaning and removal of any hard waste/E-waste material from the development.
· Collection times need to be noted in the WMP
11.59 It is recommended that should a permit be issued a condition is included which requires the submission of a Waste Management Plan that is generally in accordance with the Waste Management Plan submitted with the application (prepared by Arup, job no 260480 dated 27 July 2018) but updated to reflect the changes required above (recommended amended condition 11)
Would the amended development provide an acceptable response to Environmental Sustainable Design requirements?
11.60 A Sustainable Management Plan (SMP) prepared by Arup dated 11 August 2023 has been submitted with the application. The SMP has been reviewed by Council’s Sustainable Design Officer who has provided comments that the amended plans and Sustainable Management Plan (SMP) show that the proposal can achieve a good outcome for environmentally sustainable design. The one outstanding matter that has been raised is a requirement that details of a stormwater treatment strategy be provided including a MUSIC model. Should a permit be issued is recommended that the existing condition 5 be amended to require the submission of a new SMP that is generally in accordance with the SMP submitted with the amendment application but updated to show details of the Stormwater treatment strategy (recommended amended condition 5).
Would the amendment alter any specific requirements of the original permit?
11.61 A full review of the existing permit has been undertaken and all conditions that remain relevant are recommended to be retained or modified as necessary. This includes the retention of some condition 1 requirements that have not been addressed in the amended plans.
11.62 In summary, the following changes to the permit preamble and conditions is recommended:
Permit Preamble Changes
11.63 The permit preamble to be amended to reflect new permit triggers where the application now requires planning permission. These being for the demolition and construction of a heritage building given the heritage property at 78 Cecil Street is now included in the application site and permission to use the land for a commercial car park. It is also proposed to note the supermarket use. The use of the site for a supermarket does not require planning permission but it recommended to be added to be consistent with the existing permit preamble. The new permit preamble to read as follows (changes are shown in bold):
Demolish a building and construct or carry out works in a Heritage Overlay, use of a Commercial car park, construction of a multi storey building comprising office, supermarket, shops and food and drinks premises (as of right uses), buildings and works in association with a Design and Development Overlay and reduction in car parking
Add the properties at 78 Cecil Street and 166-170 York Street.
Condition 1 Changes
11.64 Given the significant changes to the proposal and substantial redesign of the building and new matters that have arisen during the assessment of the amended proposal a number of changes are required to the condition 1 (amended plans) requirements. These changes are detailed as follows:
· Condition 1 modified to reflect the new plans of the amendment application
· Condition 1a deleted. Condition 1(a) referred to some changes that were required for the endorsement of original approval. This is no longer relevant so is to be deleted.
· Condition 1b deleted. Condition 1(b) referred to some changes in relation to vehicular access to the development that were required for the endorsement of original approval. This is no longer relevant so is to be deleted.
· Condition 1c deleted. Condition 1(c) referred to some changes in relation to the location of a security gate which was required for the endorsement of original approval. This is no longer relevant so is to be deleted
· The detail sought by the conditions 1(d) to 1(n) are considered to still be relevant for the amended proposal and thus recommended to be retained. Conditions 1m and n to be updated to refer to the correct other conditions that are cross referenced by each of these conditions.
· New condition 1(o) requires amended plans which show the redesigned loading arrangement on the plans submitted for consideration (13/12/2023)
· New condition 1(p) to require detailed architectural drawings of the façade details, lighting, and the tower cantilever over the heritage pub (78 Cecil Street).
· New condition 1(q) to require details of the awning design over the footpath to ensure adequate weather protection for pedestrians.
· New condition 1(r) to provide details of the back of house services for the small ground floor retail and food and drinks tenancies.
· New condition 1(s) to provide details of integrated signage for the development.
· New condition 1(t) to require measured drawings of the retained sections of the façade of the Southern Cross Hotel building at 78 Cecil Street.
Other Condition changes
11.65 The amended proposal and design of the building has also required several changes to the other conditions of the permit. These changes are detailed as follows:
· Delete condition 2. This condition was in relation to a Right of Way (RoW) that was still part of the subject site when the original application was assessed. This is no longer relevant as the RoW has been discontinued and purchased by the developer
· Amend existing condition 4 to expand the scope of the of the S173 Agreement to incorporate the public realm works that are not in Northumberland Street.
· Amend existing condition 7 to reflect new Sustainable Management Plan (SMP) but also to require the submitted SMP to be updated to provide details of stormwater treatment.
· Amend existing condition 11 to reflect the new Waste Management Plan (WMP) submitted for the amended condition but also to require changes identified by Council’s Waste Management Coordinator.
· Existing condition 12 to be retained. This condition requires the submission of a Landscape Plan. Given the wording of the current condition it can be retained without any changes.
· Amend existing condition 16 to be amended to refer to the new architects for the amendment application - Woods Bagot.
· Amend existing condition 21 to reflect the changes to the allocation of car parking spaces.
· Amend existing condition 24 to specify that the commercial car park must provide 2 hours free parking for customers of the Supermarket.
· Amend condition 29 to remove references to the individual lots that need to be consolidated but rather say “all titles within the planning unit”.
· Delete condition 31 which was to regulate deliveries and rubbish collection. This would now be controlled through a separate condition which is to require a management plan for the for loading areas.
· Amend condition 32 to refer to the changes that have been made to legislation controlling noise limits for commercial, industrial and trade premises.
· New condition 37 to require the submission and endorsement of a Public Realm Works Plan.
· New condition 38 to require the supermarket windows to remain clear and unobstructed by advertising or any other coverings.
· New condition 39 to require detailed demolition Method Statement
· New condition 40 for the colour scheme of the original hotel building at 78 Cecil Street to be reinstated.
· New condition 41 for implementation of the Sustainable Management Plan.
· New condition 42 to require the preparation and endorsement of a Loading Management plan for the operation of the three loading bays.
12. COVENANTS
12.1 The applicant has completed a restrictive covenant declaration form declaring that there is no restrictive covenant on the titles for the subject site.
13. Conclusion
13.1 Clause 71.02 - integrated decision making of the planning scheme requires the decision maker to integrate the range of polices relevant to the issues to be determined and balance the positive and negative environmental, social and economic impacts of the proposal in favour of net community benefit and sustainable development.
13.2 This amendment application seeks approval to amend the current approval to incorporate a new supermarket and commercial car park in a newly designed building at a larger scale (increase of 13.82m), increase the office floor area by approximately 5,500 sqm and add a 3,394sqm supermarket. The amendment application also seeks to include the properties at 166-170 York Street at 78 Cecil Street into the development. The property at 78 Cecil Street contains a heritage hotel building which it is proposed to be incorporate but adapted back to its historic use as a hotel.
13.3 The proposal measures favourably with the Planning Policy Framework, particularly given the strategic location of the site in the South Melbourne Central Activity Centre where there is a strong policy emphasis to support the existing commercial base of South Melbourne in business services and light industry and the expansion of the area as a location for knowledge based and creative industries.
13.4 The new building that is proposed in the amendment application is larger and of a different design to the current approval. However, the new design measures favourably against the character sought for South Melbourne Central and the design objectives detailed in the Design and Development Overlay that affects the site. The new design bringing improvements over the previous design where a more modulated form is proposed to create a finer grain of scale, materiality and texture and an innovative design of the upper levels to reduce the “wedding cake” appearance of the building. Overall, the amended proposal is considered a high-quality architectural building, designed to respond to the important character and design attributes identified for South Melbourne Central and which would have a positive impact on the surrounding area.
13.5 A building of the size and scale that is proposed needs careful consideration of the traffic, parking and access and manoeuvring associated with the development. These issues have been resolved during the processing of the application where the traffic associated with the development would not adversely affect the surrounding street network, appropriate car parking has been provided and loading would be appropriately managed to not adversely affect the surrounding area.
13.6 Beyond these matters the proposal is highly resolved where it would provide excellent bicycle parking provision, acceptable ESD and WSUD outcomes, and reasonable waste management outcomes.
13.7 Ultimately, the amendment application would deliver a net community benefit to its site and surrounds subject to the conditions forming part of this recommendation. It follows that this report recommends that a Notice of Decision to grant a planning permit be issued subject to the recommended conditions.
14. OFFICER DIRECT OR INDIRECT INTEREST
14.1 No officers involved in the preparation of this report have any direct or indirect interest in the matter.
15. OPTIONS
15.1 Approve as recommended
15.2 Approve with changed or additional conditions
15.3 Refuse - on key issues
|
ATTACHMENTS |
1. Advertised Plans (S57A Plans) 2. Revised Plans (Showing Revised Supermaket Loading
Arrangement) 3. Planning Permit 4. Assessment Against DDO Requirements 5. Internal Referral Comments 6. Zone Map |
Planning Committee
29 February 2024
|
Statutory Planning Delegated Decisions Report 14 December 2023 to January 2024 (Inclusive) |
|
|
Executive Member: |
Brian Tee, General Manager, City Growth and Development |
|
PREPARED BY: |
Larry Parsons, Manager City Development |
1. PURPOSE
1.1 To present a summary of all Planning Permits issued in accordance with the Schedule of Delegation made under the Local Government Action 2020 and Section 188 of the Planning & Environment Act 1987 adopted by Council on 24 July 1996 and as amended, for the Port Phillip Planning Scheme.
2. EXECUTIVE Summary
2.1 This report presents a summary of all Planning Permits issued in accordance with the Schedule of Delegation made under the Local Government Act 2020 and Section 188 of the Planning & Environment Act 1987 adopted by Council on 24 July 1996 and as amended, for the Port Phillip Planning Scheme.
|
That Council: 3.1 Receives and notes the December 2023 and January 2024 (attachment 1) regarding the summary of all Planning Decisions issued in accordance with the Schedule of Delegation made under Section 98 of the Local Government Action 2020 and Section 188 of the Planning & Environment Act 1987 adopted by Council on 24 July 1996 and as amended, for the Port Phillip Planning Scheme. 3.2 Notes that no decisions were made by the Manager City Development under delegation from the Chief Executive Officer during the period 15 December 2023 to 29 February 2024, as resolved by Council at its Planning Committee Meeting of 14 December 2023. |
4. KEY POINTS/ISSUES
4.1 The attached lists (Attachment 1) of delegated decisions is for the period December 2023 and January 2024.
4.2 There were no delegated decisions in accordance with the report titled ‘Change to Planning Delegations (15 December 2023 until the first sitting of the Planning Committee in 2024)’ reported to the Planning Committee meeting of 14 December 2023 and its recommendations resolved by Council provided the Chief Executive Officer (including the power to on delegate), the power effective for that precise period.
5. OFFICER DIRECT OR INDIRECT INTEREST
5.1 No officers involved in the preparation of this report have any material or general interest in the matter.
|
ATTACHMENTS |
1. Delegated Decisions December 2023 and January 2024 |
Planning Committee
29 February 2024
7. Urgent Business
8. Confidential Matters
Nil