Meeting of the Port Phillip City Council
19 February 2025
|
Welcome Welcome to this Meeting of the Port Phillip City Council. Council Meetings are an important way to ensure that your democratically elected representatives are working for you in a fair and transparent way. They also allow the public to be involved in the decision-making process of Council.
About this meeting There are a few things to know about tonight’s meeting. The first page of tonight’s Agenda itemises all the different parts to the meeting. Some of the items are administrative and are required by law. In the agenda you will also find a list of all the items to be discussed this evening. Each report is written by a Council officer outlining the purpose of the report, all relevant information and a recommendation. Council will consider the report and either accept the recommendation or make amendments to it. All decisions of Council are adopted if they receive a majority vote from the Councillors present at the meeting. |
Public Question Time and Submissions Provision is made at the beginning of the meeting for general question time from members of the public. All contributions from the public will be heard at the start of the meeting during the agenda item 'Public Questions and Submissions.' Members of the public have the option to either participate in person or join the meeting virtually via Teams to ask their questions live during the meeting. If you would like to address the Council and /or ask a question on any of the items being discussed, please submit a ‘Request to Speak form’ by 4pm on the day of the meeting via Council’s website: Request to speak at a Council meeting - City of Port Phillip |
|
|
|
|
Meeting of the Port Phillip City Council |
To Councillors
Notice is hereby given that a Meeting of the Port Phillip City Council will be held in St Kilda Town Hall and Virtually via Teams on Wednesday, 19 February 2025 at 6:30pm. At their discretion, Councillors may suspend the meeting for short breaks as required.
AGENDA
1 APOLOGIES
2 MINUTES OF PREVIOUS MEETINGS
Minutes of the Meeting of the Port Phillip City Council 5 February 2025.
3 Declarations of Conflicts of Interest
4 Public Question Time and Submissions
5 Councillor Question Time
6 Sealing Schedule
Nil
7 Petitions and Joint Letters........................................ 5
7.1 Petition: Request for changes to Parking Restrictions in Lyndon Street, Ripponlea......................................... 5
7.2 Petition - Request to not proceed with Edwards Park Public Amenities........................................................... 8
7.3 Petition: CoPP Dog Network request for fencing Port Melbourne Skate Park.................................................. 9
7.4 Petition Response: Sporting future for Elwood Park.. 11
8 Presentation of CEO Report
8.1 Presentation of CEO Report Issue 114 - Quarter 2, 2024-25....................................................................... 19
9 Inclusive Port Phillip
Nil
10 Liveable Port Phillip
Nil
11 Sustainable Port Phillip
Nil
12 Vibrant Port Phillip
Nil
13 Well Governed Port Phillip
13.1 Mid-Year 2024-25 Financial Review.......................... 80
13.2 South Melbourne Town Hall Renewal & Upgrade - Project Update.......................................................... 105
13.3 MAV State Council Submission................................ 117
13.4 St Vincent Gardens - Playground Upgrade RFT000324 (Landscape Contract award).................................... 124
13.5 Audit and Risk Committee - Biannual Report as at 31 December 2024........................................................ 129
13.6 Councillor Expenses Monthly Reporting - November, December 2024 and January 2025.......................... 133
14 Notices of Motion........................................................ 148
14.1 Notice of Motion - Councillor Hardy - Changes to Local Law............................................................................ 148
15 Reports by Councillor Delegates
16 URGENT BUSINESS
17 Confidential Matters................................................ 151
The information contained in the following Council reports is considered to be Confidential Information in accordance with Section 3 of the Local Government Act 2020.
17.1 Public Open Space - Potential Acquisition
3(1)(a). Council business information, being information that would prejudice the Council's position in commercial negotiations if prematurely released
3(1)(c). land use planning information, being information that if prematurely released is likely to encourage speculation in land values
3(1)(g(ii)). private commercial information, being information provided by a business, commercial or financial undertaking that if released, would unreasonably expose the business, commercial or financial undertaking to disadvantage.
Reason: Includes commercial information that would jeopardise Council's commerical position if prematurely released, and information about potential changes to land use, which may potentially result in land speculation, and commerically senitive information provided by a counter-party
17.2 Extension of Provision of Landfill Services Contract
3(1)(a). Council business information, being information that would prejudice the Council's position in commercial negotiations if prematurely released.
Reason: The reports contains details of a contract extension which is subject to third-party negotiations and disclosure of Council's position. If prematurely released, this may impact Council's ability to negotiate an acceptable outcome for the extension.
1. Apologies
2. Minutes of Previous Meetings
|
That the minutes of the Meeting of the Port Phillip City Council held on 5 February 2025 be confirmed. |
3. Declarations of Conflicts of Interest
4. Public Question Time and Submissions
5. Councillor Question Time
6. Sealing Schedule
Nil
7. Petitions and Joint Letters
7.1 Petition: Request for changes to Parking Restrictions in Lyndon Street, Ripponlea............ 5
7.2 Petition - Request to not proceed with Edwards Park Public Amenities......................................... 8
7.3 Petition: CoPP Dog Network request for fencing Port Melbourne Skate Park................................. 9
7.4 Petition Response: Sporting future for Elwood Park................................................................... 11
Meeting of the Port Phillip City Council
19 February 2025
|
Petition: Request for changes to Parking Restrictions in Lyndon Street, Ripponlea |
A Petition containing17 signatures, was received from residents of Lyndon Street, Ripponlea.
The Petition states the following:-
PETITION TO THE CITY OF PORT PHILLIP BY THE RESIDENTS OF LYNDON STREET, RIPPONLEA, 3185.
The residents of Lyndon Street Ripponlea, as rate payers to the City of Port Phillip, petition the Council to introduce Time-Limited Parking restrictions on the non-residential side of Lyndon Street, Ripponlea:
4P 3PM-8PM MON-FRI PERMIT AREA 14 - 4 hour only parking between the hours of 3pm & 8pm Monday to Friday

Supporting Information:
In the last 18 months the number of recreational vehicles – caravans, trailers, boats, boat trailers – being parked permanently on Lyndon Street has increased to the point where resident, commuter, local employee and visitor parking is being adversely impacted.
On any day there can be up to 12 recreational vehicles, not owned by Lyndon Street residents, permanently parked on the non-residential side of Lyndon Street. This is forcing commuter and all-day employee parkers onto the residential side of the street. Additionally, the space available for visitors and trades people is on most days non-existent due to numbers of spaces being occupied by permanently parked recreational vehicles.
Residents pay for resident and visitor parking permits specifically to enable parking on the residential side of the street, only to find no spaces available due to overflow commuter parking.
This is a particularly difficult situation for aged/disabled residents who require immediate access to their home. It is also extremely difficult for mothers with young children. Not being able to park on the residential side of the street is causing additional unnecessary stress and concern for residents.
The residents have considered many options and believe that the introduction of 4P, 4 hour only parking between the hours of 3pm & 8pm Monday to Friday, is viable. The introduction of this parking restriction will not adversely impact commuters or local employees but will in fact free up parking spaces on a daily basis for residents, commuters, employees and visitors.
OFFICER COMMENT
Council is increasingly receiving complaints about the long-term parking of caravans and trailers on suburban streets. Currently, it is not illegal for registered trailers, boats and caravans to park in unrestricted parking areas if they do not exceed 7.5 meters in length and 4.5 tonnes in weight.
To address this issue, in August 2024, Council passed a motion to commence the statutory process to introduce a municipal wide Local Law to manage the long-term parking of caravans, trailers, and boats.
A change of local law is a statutory process which requires extensive community engagement – and can take approximately 12 months to complete. Funding for the process will be considered by Council as part of the 2025/26 budget. Subject to the outcome of the budget process, the process required under the Local Government Act would commence in August 2025 with an aim to introduce a new Local Law in mid 2026.
The introduction or modification of parking controls on any street is governed by Council’s Parking Management Policy. The Policy is not intended to directly restrict the parking of caravans and trailers.
The Policy provides for the introduction of new or increased parking restrictions in areas where high demand leads to a lack of parking availability. Increasing restrictions, by for example providing a 2P limit will increase parking availability.
Council’s parking restriction change request process commences with a jointly signed letter or petition of support by properties on the affected street. The original petition was received in line with this process and officers conducted site inspections at various times during business hours to assess the parking demand on Lyndon Street.
While several recreational vehicles were observed parked along the railway line, the findings did not justify additional parking restrictions in line with the policy. That is, there was consistently sufficient parking available along the residential frontage of Lyndon Street for residents and visitors.
|
RECOMMENDATION 1. Receives and notes the petition. 2. Thanks the petitioners for their petition. 3. As this petition pertains to an operational matter, in accordance with Council’s Governance Rules, Council refers the petition to the CEO for a response. 4. Notes that this request has been investigated in accordance with Council’s parking restriction change process, which determined that there was consistently parking availability on the residential frontage of Lyndon Street for residents and visitors despite the parking of boats, trailers and caravans. As such there was no trigger under Council’s Parking Management Policy to justify a change in parking restrictions. 5. Notes that in August 2024 Council resolved to commence the statutory process to introduce a municipal wide Local Law to effectively manage the long-term parking of caravans, trailers. 6. Notes that officers will advise the community of their opportunity to have their say on the proposed Local Law. |
|
ATTACHMENTS |
Nil |
Meeting of the Port Phillip City Council
19 February 2025
|
7.2 |
Petition - Request to not proceed with Edwards Park Public Amenities |
A Petition containing 138 signatures has been received from local residents.
The Petition states the following:-
To the Mayor and Councillors of the Port Phillip City Council
The Petition of the following named citizens draws the attention of Port Philip City Council to the resolution of Council adopted for item 10.2 (Edwards Park Public Amenities) at the Ordinary Meeting of Council held on 11 December 2024.
The following Petitioners hereby request that the Council:
1. Pause the progression of any work undertaken in relation the implementation of this Council resolution.
2. Not proceed with the adopted location of 2b by revoking, reversing or superseding motion 3.3.
3. Reassess the evaluation criteria that was used to elevate the prioritisation of resident amenity, (not opposite resident's homes) and maintain useable play/picnic shaded areas for park users.
4. Undertake further consultation with residents and community on a shortlist of a suitable location following a re-evaluation of the available sites and include alternative sites not included in the original shortlist.
|
RECOMMENDATION That Council: 1. Receives and notes the Petition. 2. Thanks the petitioners for their Petition relating to the proposed public amenities at Edwards Park. 3. Considers this matter at the Council Meeting scheduled for 19 March 2025. |
|
ATTACHMENTS |
Nil |
Meeting of the Port Phillip City Council
19 February 2025
|
7.3 |
Petition: CoPP Dog Network request for fencing Port Melbourne Skate Park |
A Petition containing 170 signatures, was received from skateboarders, pedestrians and dog owners using Hester Reserve.
The Petition states the following:-
To the Mayor and Councillors of the Port Phillip City Council
Port Melbourne dog owners and skateboarders request the urgent installation of fencing on all four sides of the new Port Melbourne skate park to ensure safety of skateboarders, pedestrians and dog owners using Hester Reserve. The current low wall and some shrubs between Hester Reserve and the skate park will not provide adequate separation between skateboarders, pedestrians and dog walkers.
The following Petitioners hereby request:
· Metal fencing installed on all four sides of the skatepark to a height that ensures safety
· Entrances to skatepark to have gates to prevent kids/skateboards running into roads, tram users from getting hurt, and excited dogs running into the skatepark
OFFICER COMMENT
Project background
Port Melbourne Skatepark (also known as Graham Street Skatepark) is in Port Melbourne underneath the Graham Street overpass. Due to age and general wear from use, the previous skate facilities had approached the end of their useful asset life.
Initial community consultation on the project was undertaken in 2016, followed by additional consultation in February 2024.
The community’s feedback helped shape the vision for the skatepark and upgrades to the skatepark were completed in December 2024.
Consideration of fencing
Hester Reserve is an existing dog off-leash area located within the broader Port Melbourne Light Rail reserves, which are of historical, aesthetic, and social significance.
There is an existing low-level stone wall between the skatepark and the adjacent Hester Reserve, as well as a small portion of fencing to provide a buffer to the Port Melbourne Light Rail. Changes to the existing low-level stone walls in the Port Melbourne Light Rail reserves should be minimised unless there is a clear strategic justification.
There was no barrier installed between the previous skate facilities and Hester Reserve and fencing was not an inclusion in the project scope for the new Port Melbourne Skatepark.
Since the skatepark has opened, Council officers have identified the need to install a barrier to mitigate the risk of skateboards leaving the skatepark and entering Swallow Street.
Council officers are currently exploring options for this barrier treatment and are arranging an onsite consultation opportunity with the Ward Councillor and interested parties. Notification of this consultation opportunity will occur through signage placed at the site and a direct mail out to neighbouring residents. A specific invitation will also be made to the lead petitioner and other community members who have raised concerns directly with Council.
|
That Council: 1. Receives and notes the petition. 2. Thanks the petitioners for their petition. 3. Notes that the petition pertains to an operational matter, in accordance with Council’s Governance Rules, Council refers the petition to the CEO for a response. 4. Notes retrofitting of the park is underway to mitigate the risk of skateboards leaving the skatepark and entering Swallow Street. 5. Notes that officers will contact the lead petitioner to discuss this work and invite them to an onsite consultation opportunity. |
|
ATTACHMENTS |
Nil |
Meeting of the Port Phillip City Council
19 February 2025
|
7.4 |
Petition Response: Sporting future for Elwood Park |
A Petition containing 24 signatures, was received and presented to the 4 September 2024 Council Meeting.
The Petition states the following:-
Mayor and Councillors of the City of Port Phillip,
The Petition of the following named citizens draws the attention of the Council for the need to secure the sporting future of Elwood Park through upgrading the pavilion, storage and changerooms. Elwood Park co-tenant clubs and our neighbouring stakeholders have formed a committee to drive towards a common goal of upgrading the pavilion and change room facilities.
Over the past 20 years, Elwood and neighbouring suburbs have undergone a significant demographic shift towards young families. This is evidence by the fact that local school enrolments have tripled in some instances. The same (or even greater) impact has been experienced by the tenant clubs at Elwood Park. For example, the St Kilda City JFC has grown 6 teams (2006) to 27 teams (2024). Our co-tenants have experienced similar growth which is outlined on page 5 of the attached pavilion upgrade document. Additionally, we are very proud of our participation rates in girls sports which again has seen a seismic shift over recent years. Participation rates, girls/child safety are just some of the reasons that the Elwood Park Pavilion in change rooms need upgrading.
OFFICER COMMENT
Executive Summary
Elwood Park provides valuable open space for community sport, including a pavilion, four sportsgrounds, cricket training nets, tennis courts, croquet courts and other infrastructure. Elwood Park forms part of the Elwood Foreshore Masterplan, which was endorsed by Council in September 2023.
The sports clubs that use the four sportsgrounds and Elwood Park Pavilion have proposed designs to upgrade the pavilion and address their concerns associated with amenity, changerooms and storage. Officers from Council’s Recreation Team have previously received a copy of these designs. They have not provided advice on the clubs design or project scope and advised that investment in the Elwood Park Pavilion would be considered through the Elwood Foreshore Masterplan.
Elwood Park Pavilion is due to be considered for upgrade as part of the Elwood Foreshore Masterplan, with implementation of this Plan to span over the next 10 years. In the interim, there is current funding to provide temporary changeroom and toilet facilities at Elwood Park. This will extend the amenities available to sports clubs and is due to be completed in 2025.
Background
Council tabled the petition from the Elwood Park tenants at the September 2024 Council Meeting.
Elwood Park is located on the boundary of the City of Port Phillip and Bayside City Council, providing valuable sporting facilities and open space for the Port Phillip community and beyond the municipal boundaries. Elwood Park is the key hub for sport and recreation within the Elwood area for both formal and informal activity. As a sporting precinct it comprises four sportsgrounds, including two AFL/cricket ovals, two soccer pitches and a pavilion; and has many users including sports clubs, local community (formal and passive use) and local schools and is a hive of activity year-round.
The original Elwood Park pavilion was built in 1967 and upgraded in 2009, which included a full rebuild, relocation and expansion of the facility. The life expectancy of the building following the upgrade in 2009 is 50 years.
This upgrade was to address growth in participation of tenant sport clubs (particularly female participation), improve the functionality of the building and address the issues of an ageing facility.
Image 1: Elwood Park Pavilion 2009 Upgrade

Strategic Alignment
The City of Port Phillip has approximately 353 hectares of public open space distributed over 169 individual spaces. This includes reserves with sports grounds, courts, and greens as well as 11kms of foreshore. There are over 100 community sports clubs who are allocated formal use of sports facilities in the municipality; and Council directly manages the leases and licences of 49 sports clubs, utilising sports grounds, and courts for competitions in netball, Australian Rules football, cricket, soccer, tennis, bowls, basketball, croquet, Gaelic football, and baseball. Council also provides facilities for other sporting pursuits along the foreshore such as lifesaving, angling, sailing, Scouts and yachting, and there are several clubs that utilise Council’s community centres, for sports such as trugo, dance and gymnastics.
Sports facilities, open spaces, and clubs within all parts of the municipality, excluding Albert Park Reserve are managed by Council. In the case of Albert Park this is managed by Parks Victoria (PV) and the State Sport Centres Trust (SSCT). With the CoPP population projected to increase by 48% in the next 20 years, it is important that the entire network of sports facilities (both Council and non-Council managed) is considered together.
To provide strategic direction and support decision making, Council has the following documents and processes in place:
· Getting Our Community Active: Sport and Recreation Strategy 2015-2024: currently under review.
· Fair Access in Sport Policy.
· Asset Management Plans, including building condition reports.
These strategic documents also ensure Council can respond to the competing demand for use of sports facilities by multiple user groups for a variety of purposes, including for organised sport, informal sport and unstructured physical activity, fitness and wellness activities, dog walking and play. This is especially pertinent as many sports clubs are seeing, and will continue to see, an increase in participation numbers and diverse playing groups (including juniors, seniors, and masters).
Community Sports Pavilions
Elwood Park Pavilion is one of six multi-sport pavilions in the municipality. Whilst the primary function of the Elwood Park Pavilion is to support community sport, the social space is also used by community hirers. Within the Elwood Park precinct, it is one of seven Council owned recreational buildings with the other six currently leased to other sporting clubs.
Recent Elwood Park Sporting Upgrades
Upgrades to pavilions are based on a combination of asset condition (physical state of the building), functionality (whether the building is fit for purpose), capacity (based on use and demand) and sustainability.
Council has invested in upgrading sporting facilities at Elwood Park in recent years. This has included:
· An upgrade to Esplanade Oval (northern sportsground) and Wattie Watson Oval (western sportsground) in 2020 and 2021 respectively, providing a better surface for sporting activity and enabling increased sports training allocations. These projects were of a value of $675,000 and $1.6m respectively.
· In 2022, the Elwood Park Sports Field Lighting Upgrade Project was completed which significantly improved the quality of lighting for training and match days across all four sportsgrounds. This project was at a cost of over $1.5m.
· In 2023, goal netting was installed behind the football goals at Wattie Watson Oval at the Ormond Esplanade end to reduce damage to trees and the number of balls entering the roadway. This was at a cost of circa $100,000.
· In 2024, Council supported Elwood Park Tennis Club to resurface their tennis courts with a financial contribution of $93,500.
Future investment at Elwood Park will occur as a result of the Elwood Foreshore Masterplan and the Melbourne Water Main Drain Duplication Project. The Melbourne Water works will see Head Street A (southern sportsground), Head Street B (eastern sportsground) and the Elwood Croquet Club being re-established in 2028.
Elwood Foreshore Masterplan
In September 2023, the Elwood Foreshore Masterplan was endorsed by Council (Enhancing Elwood Foreshore | Have Your Say Port Phillip)
The Masterplan takes a precinct approach to the upgrade of this area, addressing the key opportunities for the whole site, to ensure the buildings, open space and recreational facilities all work well together. Elwood Park Pavilion is recognised as part of this Masterplan, specifically to upgrade changerooms and toilets.
The Elwood Foreshore Masterplan has had multiple rounds of community engagement, including specific engagement with tenant clubs in the area. Further engagement will be programmed during the detailed design and implementation stages.
The preparation of the Masterplan included building condition reports for all foreshore sports facilities and buildings. Based on these assessments and the deliverables identified within the Masterplan, works to Elwood Park Pavilion are planned to be delivered in the later stages of the Masterplan implementation. The implementation is expected to be staged over a ten-year period, with exact scheduling yet to be confirmed. Other buildings within the Elwood Park precinct have been identified as higher priority projects, due to their condition.
User Groups of Elwood Park Reserve
In 2009, there were three sports clubs co-existing at Elwood Park which has grown substantially to hosting six sports clubs. In this time, the use has extended to include St Kilda City Junior Football Club, St Kevins Gaelic Athletic Club and St Kilda Celts Soccer Club. Unfortunately, Elwood Touch Football ceased their requirements to use Elwood Park in 2023 due to a decline in numbers.
There are currently five sports clubs who hold licences to use Elwood Park for their sporting season, with varying uses and access to the pavilion. Table 1 below provides a summary of these user groups.
Table 1: Users of Elwood Park Pavilion
|
Club Name |
Season of Operation |
Operational Uses |
User Demographics |
|
St Kilda City Junior Football Club |
Winter |
Pavilion Access Game Day, Training and Storage |
U8 – U18 Girls and Boys programs |
|
Elwood City Soccer Club |
Winter |
Pavilion Access Game Day, Training and Storage
|
U6 – U18 Boys and Girls programs Womens Team Senior Mens Teams |
|
St Kilda Celts Soccer Club |
Winter |
Pavilion Access Game Day and external storage |
Senior Mens Team (other teams operate from Alma Park) |
|
St Kevins Gaelic Football Club |
Winter |
No Pavilion Access, training only and external storage |
Senior Mens and Womens Teams |
|
Elwood Cricket Club |
Summer |
Pavilion Access Game Day, Training and Storage
|
U12 – U18 Boys program Senior Mens Team |
Each of the tenant sports clubs have demonstrated growth in participation in recent years, especially measured in the growth of participation by women and girls. This increase has put demand on the pavilion and the sports grounds surrounding it. Each sportsground is at capacity for community sport and at present, cannot support further growth without compromising sportsground conditions.
Discussion
Elwood Park Pavilion Facilities
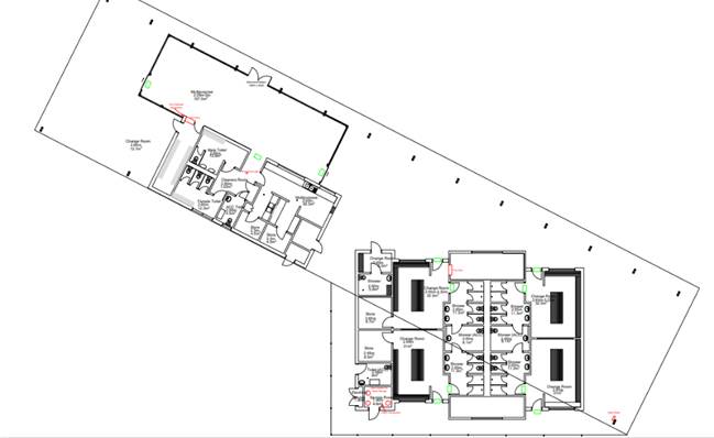
The below plan indicates the functional spaces within the existing Elwood Park Pavilion.
Image 2: Facility diagram of the existing Elwood Park Pavilion

The sports clubs at Elwood Park have communicated to Council that the biggest points of contention at the pavilion are the limited number of changerooms, toilets and the amount of individual storage options available.
Storage
Each of the clubs have their own individual storage at the pavilion. Overall, there are three (3) internal storage rooms and three external storage areas, accessed by roller doors. The clubs also have access to a shipping container which they have hired separate to Council.
The allocated storage within the facility meets that of the relevant State Sporting Association guidelines and provides each sporting tenant with at least one individual storage space. Storage is used for training equipment, goals, uniforms, club shop items, line marking equipment, game day equipment, canteen, needs, etc. The allocated storage at this site is commensurate with other sports pavilions in Port Phillip.
Storage is provided at all Council sports pavilions and requests for additional storage are common. Particularly on sites where storage is shared by both summer and winter tenants, due to keeping equipment on site year-round (ie during off season).
If Council wished, they could ask officers to work with the clubs to explore optimising storage opportunities at the site.
Changerooms
The Elwood Park Pavilion contains four change rooms, with a roller door to convert to two larger change rooms. Given that all four sportsgrounds can be in use at the same time, there is often a need for eight sports teams requiring access to a change room.
Access to pavilion changerooms is typically managed through operational mechanisms implemented by the sports clubs. This is supported by scheduling of the match play so during the:
· Summer sporting season, Elwood Cricket Club are the solo summer tenant.
· Winter season:
o Elwood City Soccer Club and St Kilda Celts Soccer Club operate most of their match play activity on a Saturday, with some senior and junior games on a Sunday.
o St Kilda City Junior Football Club matches are on Sundays, with the occasional evening game on a Friday night.
o St Kevins Gaelic Football Club utilise Elwood Park as a training facility only and don’t require pavilion access.
In addition to scheduling, further support has been implemented by the installation of changeable door signs in the 23/24 season to display which group is using the changeroom, and communication to maximise change room use.
Upgrading Elwood Park Changerooms Facilities
A notice of motion was raised at the Council meeting on 2 November 2022 seeking to increase the number of changerooms available for sports club use. This was responding to the tenant clubs acknowledging their growth in participation and identifying that the functionality of the current pavilion did not meet their operational needs.
As a result of the notice of motion, Council committed to install additional changerooms on site. This facility will provide two additional change rooms and four additional toilets to support sports club usage. The additional change rooms are due to be completed in 2025. The project has required community consultation, obtaining required permits and approvals, club engagement to inform the design and site-specific conditions which have needed additional investigation.
The installation of these changeroom facilities will increase the provision to six changerooms available to sports clubs and provide some decrease in the impact to lack of changeroom facilities provided by the existing pavilion.
|
RECOMMENDATION That Council: 1. Receives and notes the Petition. 2. Thanks the petitioners for their Petition for an upgraded Elwood Park Pavilion. 3. Notes the increase in sports participation in Elwood, and Council’s delivery of the Elwood Reserve Changeroom Facilities project to install an additional two change rooms and four toilets for sports club use. 4. Addresses Elwood Park Pavilion upgrades through the delivery of the Elwood Foreshore Masterplan, with continued tenant club engagement during detailed design phase. |
|
ATTACHMENTS |
Nil |
Meeting of the Port Phillip City Council
19 February 2025
8.1 Presentation of CEO Report Issue 114 - Quarter 2, 2024-25......................................................... 19
Meeting of the Port Phillip City Council
19 February 2025
|
Presentation of CEO Report Issue 114 - Quarter 2, 2024-25 |
|
|
Executive Member: |
Robyn Borley, Director, Governance and Organisational Performance |
|
PREPARED BY: |
Kihm Isaac, Corporate Planning and Performance Advisor |
1. PURPOSE
1.1 To provide Council with a regular update from the Chief Executive Officer regarding Council’s activities and performance.
2. EXECUTIVE Summary
2.1 In March 2014, the City of Port Phillip introduced a program of more regular performance reporting through the CEO Report.
2.2 The attached CEO Report – Issue 114 (Attachment 1) focuses on Council’s performance for Quarter 2 (September to December) 2024/25.
|
That Council: 3.1 Notes the CEO Report – Issue 114 (provided as Attachment 1). 3.2 Authorises the CEO or their delegate to make minor editorial amendments that do not substantially alter the content of the report. |
4. OFFICER MATERIAL OR GENERAL INTEREST
4.1 No officers involved in the preparation of this report has declared a material or general interest in the matter.
|
ATTACHMENTS |
1. CEO Report Issue 114 - Quarter 2, 2024-25 |
Meeting of the Port Phillip City Council
19 February 2025
9. Inclusive Port Phillip
Nil
10. Liveable Port Phillip
Nil
11. Sustainable Port Phillip
Nil
12. Vibrant Port Phillip
Nil
13. Well Governed Port Phillip
13.1 Mid-Year 2024-25 Financial Review................. 80
13.2 South Melbourne Town Hall Renewal & Upgrade - Project Update.............................................. 105
13.3 MAV State Council Submission...................... 117
13.4 St Vincent Gardens - Playground Upgrade RFT000324 (Landscape Contract award)...... 124
13.5 Audit and Risk Committee - Biannual Report as at 31 December 2024...................................... 129
13.6 Councillor Expenses Monthly Reporting - November, December 2024 and January 2025......................................................................... 133
Meeting of the Port Phillip City Council
19 February 2025
|
Mid-Year 2024-25 Financial Review |
|
|
Executive Member: |
Lachlan Johnson, General Manager, Operations and Infrastructure |
|
PREPARED BY: |
Peter Liu, Chief Financial Officer Spyros Karamesinis, Head of Financial Business Partnering, Analysis & Compliance Angeline Dooley, Manager, Enterprise Portfolio Management Office |
1. PURPOSE
1.1 To provide Council with an overview of the results of the Mid-Year 2024/25 Financial review including performance to budget (as required under Section 97 of the Local Government Act 2020) and seek approval for any unbudgeted items.
2. EXECUTIVE Summary
2.1 The Council Plan 2021-2031 (Year Four) and Budget 2024/25 was adopted with a cumulative cash surplus of $0.62 million at the 26 June 2024 Special Council meeting.
2.1.1 The Income Statement Converted to Cash is used as the key financial measure to ensure prudent financial management by maintaining a modest cumulative cash surplus.
2.1.2 Budget 2024/25 included a business-as-usual approach, however required sound financial control to manage several challenges including persistent inflation higher than the rates cap, cost pressures and growing difficulty in meeting the $1.8 million annual efficiency saving target.
2.2 As part of the mid-year financial review the 2024/25 cumulative cash surplus increased (before the inclusion of budget requests) to $1.54 million. This was an improvement of $1.05 million for the quarter predominately due to the following movements
2.2.1 Additional income generated through the temporary lease-back to seller following the purchase of the old Australia Post site in Port Melbourne and improvement in parking infringement income due to higher volumes of infringements.
2.2.2 Minor improvements in grant income including indexation of funding for Maternal and Child Health Services.
2.2.3 Additional expenditure due to increased levels of parent leave (historical average increase) and challenges in service delivery under the new aged care village model.
2.3 Council’s forecast operating surplus has improved by $0.75 million from $10.5 million to $11.25 million. Full details are contained in Attachment 1 financial statements including financial statements and commentary on material variances.
2.4 The Project Portfolio has decreased by net $2.8 million to a 2024/25 forecast of $124.3 million primarily due to project deferrals to 2025/26. A summary of project deferrals and significant movements has been listed in attachment 3.
2.5 Council’s financial sustainability risk rating is expected to maintain an overall low risk rating, which is as budgeted. That said, the mid-year review has posed several financial challenges for Council reflective of broader economic conditions including persistent high inflations and a competitive recruitment market. Full detail is included in section 5.0 of this report. This quarter, there have two major changes initiated by the State Government which will have significant on Council operations:
2.5.1 The Congestion Levy will increase by 73% from 1 January 2026 to align with rates in Sydney. Currently Council pays $1.1m per year in congestion levy and this is projected to increase to $1.86m with the proposed increases over the next two years. This cost shift will have to be passed on to the public through increase to paid parking rates across the municipality.
2.5.2 The Fire Services Property Levy (FSPL) will be replaced by the Emergency Services and Volunteers Fund (ESVF) from 1 July 2025. While the levy is being expanded to support a wider range of emergency services, the cost will be passed onto ratepayers by the State Government doubling the levy rate. The charge, which appears on rates notices, will grow from 8.7 cents for every $1,000 of a property’s capital improved value, to 17.3 cents next financial year. Council is required to currently manage this levy on behalf of the State Government and the increase will likely cause significant price shock for ratepayers – Council will have to manage both the administrative burden and also the feedback from ratepayers.
2.6 The mid-year financial review also provided opportunity to consider budgets inclusions. The following are for consideration (see detail in attachment 2):
2.6.1 City Amenity Officer Additional Resourcing – Additional city amenity officer to allow the continuation of afternoon shifts during the summer months to extend throughout the entire year. This will allow two teams of two staff member to respond to concerns between 6am to 6pm year-round rather than till 2pm outside of Summer Management temporary staffing.
2.6.2 Coastal Planning – Additional resourcing required to meet the minimum requirements set by the State and to ensure effective community and stakeholder consultation. This will enable the development of the Coastal Adaptation Plan and Foreshore Management Plan to continue in order to implement immediate actions along the 11km of highly valued foreshore and progress long term actions and significant community benefits for the entire municipality.
2.6.3 Sandridge Recreation Precinct Masterplan - The precinct comprises the Australia Post site and Bertie Street (Council-owned), North Port Oval (Crown Land managed by Council), and the Bunnings and DHL sites (privately-owned). The first stage of the project is to develop a masterplan for the entire precinct. This will allow this Council to proceed to deliver open space on Council owned and managed sites while also ensuring future integration with the Bunnings and DHL sites when those sites become available in future decades.
2.6.4 Open Space and Tree Maintenance Procurement - The original project dealt with preparing tender specifications to go to market with. As part of the development of the business case the project identified that an exit and Transition Plan is an essential requirement to ensure business continuity and successful contract changeover. A key requirement of the transition plan is to undertake contract specification compliance audits of various asset types to ensure these assets meet specification requirements at the commencement of the new contracts.
|
That Council: 3.1 Notes that full year cumulative cash surplus before the mid-year budget requests is $1.54 million which is $0.92 million more than budget of $0.62 million. 3.2 Notes that the favourable surplus is being provisioned for the additional renewal and safety works for the South Melbourne Town Hall Renewal and Upgrade which is subject to a separate decision of Council. 3.3 Notes attachment 1 – Financial Statements with accompanying explanatory notes. 3.4 Notes the significant changes initiated by the Victorian Government that will result in cost shift to Council and our community including: 3.4.1 Congestion Levy to increase by 73% from 1 January 2026 which will increase Council’s cost base by approximately $0.76 million per annum. 3.4.2 Emergency Services and Volunteers Fund will replace the Fire Services Property Levy commencing 1 July 2025. This change will see an increase of approximately 57% of additional levy from $24 million to $37.7 million to the Victorian Government to be paid by the community. An average increase of $177 per rateable property. Council will be providing further information to our community when available. 3.5 Approves the following additional funding requests (see attachment 2 –Budget Requests): 3.5.1 $60,000 for an additional City Amenity Officer ($110,000 per annum ongoing) to enable afternoon patrols throughout the year and not just during summer months. 3.5.2 $175,000 one off to deliver Sandridge Recreation Precinct masterplan to enable the delivery of additional open space on Council owned and managed sites. 3.5.3 $100,000 one off to support the procurement of the Open Space and Tree Maintenance Contract renewal including developing a transition plan and conducting asset audits to enable service uplift in the new contract. 3.6 Approves the following additional funding requests for 2025/26 subject to Budget 2025/26 endorsement (see attachment 2 –Budget Requests): 3.6.1 $127,000 one off for Coastal Planning resourcing to deliver the next stages of the Coastal Adaptation Plan and Foreshore Management Plan with funding re-prioritised within projects in the Public Space Strategy. 3.7 Notes attachment 3 – Portfolio updates and achievements. 3.8 Notes in accordance with Section 97(3) of the Act, the Chief Executive Officer supported by the Chief Financial Officer, concludes that a revised budget for 2024/25 is not required. 3.9 Delegates authority to the CEO, or their delegate, to reflect any changes made by Council at tonight’s meeting, and to make minor typographical corrections (including in any attachments to this report) before final publication. |
4. KEY POINTS/ISSUES
Overview
4.1 The organisation carries out a monthly review of all operating revenue and expenditure as well as the project portfolio, which is then reported as part of the monthly CEO Report. In addition to this, a detailed quarterly update is presented to Council for the first, second and third quarters, followed by the annual report at year end.
4.2 The results for the quarterly financial reviews are presented to Council using two sets of performance reporting instruments:
4.2.1 The Comprehensive Income Statement Converted to Cash.
4.2.2 The Victorian Auditor General Office’s (VAGO) Financial Sustainability Indicators.
Comprehensive Income Statement Converted to Cash
4.3 We use the Comprehensive Income Statement Converted to Cash to ensure prudent financial management by maintaining a modest cumulative cash surplus.
4.4 Councils forecast cumulative cash surplus for 2024/25 has been updated following the mid-year financial review to $1.54 million, which is $0.92 million more than budget of $0.62 million (Attachment 1).
4.5 Council’s forecast operating surplus has improved by $0.75 million from $10.5 million to $11.25 million. Full details are contained in Attachment 1 financial statements including commentary on material variances. The following section provides a high-level overview of key movements.
4.6 Net revenue increase of $2.3 million mainly due to:
4.6.1 $0.87 million additional one-off income for the lease back of the Australia Post Site purchased by Council this year.
4.6.2 $0.35 million improvement in parking infringement income due to higher volumes of infringements issued through improved workforce management.
4.6.3 $0.43 million improvement in operating grant income including additional project funding for including Housing Strategy, Greening Port Phillip, and E-Scooter Trial (offset by expenditure).
4.6.4 $0.34 million additional operating grant income to reflect the aged care in home service between July and September 2024 (due to the delayed transition to new providers). Fully offset by costs to deliver the service.
4.6.5 $1.24 million improvement in developer open space contributions (funds held in reserves for future use to upgrade and expand public open space).
4.6.6 $0.10 million improvement in other income related to property rentals.
4.6.7 ($0.15) million reduction in net waste charge income due to lower projected growth in property numbers and greater numbers of private collection rebates issued.
4.6.8 ($0.96) million net reduction in capital project grants received mostly due $1.0 million of grants received in prior year (such as Eco Centre, JL Murphy Pitch Upgrade, Danks Bio Link, Shrine to Sea Works) and has partially offset by additional funding received of $0.2 million for the Library Upgrade and Renewal Program.
4.7 Net expenditure increase of ($1.6) million mainly due to:
4.7.1 $0.22 million efficiency savings identified in 2024/25 including discontinuing the funding with Better Health Network for antenatal social services as alternative service providers are available. Minimal service impact to the community expected.
4.7.2 ($0.43) million additional grant funded project expenditure for Housing Strategy, Greening Port Phillip and E-Scooter Trial (offset by grant funding).
4.7.3 ($0.40) million net increase in depreciation, updated due to current mix of assets (actual assets capitalised to date).
4.7.4 ($0.34) million additional employee costs to aged care in home service between July and September 2024 (delayed transition to new providers). Fully offset by government funding.
4.7.5 ($0.30) million timing changes for operating projects including deferrals after budget adoption to 2024/25 including ICT Security Strategy, Urban Forest Strategy and Clever Port Phillip. These have been partly offset by project spend completed early, reducing 2024/25 budgets including for the Waste Transformation Program.
4.7.6 ($0.15) million increase in parental leave taken for 2024/25 increasing on prior year averages.
4.7.7 ($0.10) million increase in maintenance expenditure for ANZAC station precinct following asset hand-over from the Victorian Government.
4.8 Net capital decrease of $3.3 million mainly due to:
4.8.1 ($3.9) million of additional investment to reflect the recognition of the deposit for the Australia Post site land purchase deposit which was treated as prepayment in 2023/24.
4.8.2 ($1.5) million deferrals from 2023/24 to 2024/25, key deferrals include minor timing delays for the Eco Centre Redevelopment and the St Kilda Foreshore Lighting Renewal.
4.8.3 ($0.8) million additional spend for new projects including the minor upgrades to Middle Park Library, renewal works at Woodruff Oval and design work for Broadway Bridge Superstructure.
4.8.4 $1.3 million reduction due to early work on projects in 2023/24 ahead of forecast including for the South Melbourne Town Hall Renewal and Upgrade and the Children’s Centre Improvement Program.
4.8.5 $8.5 million deferral to future years including Edwards Park Public Amenities delayed due to evaluating community feedback and St Kilda Botanical Gardens Public Toilet postponed as a result of resource constraints.
4.8.6 $0.10 million savings achieved through scope changes for the Palais Theatre Tunnels Rectification Project and Bay St Coles Public Toilet.
4.8.7 See capital works statement for detailed breakdown (Attachment 1).
4.9 The forecasted drawdown on council reserves has decrease by $3.6 million. This is primary due to the delayed portfolio delivery with projects being deferred to future years. See reserve movements notes in Attachment 1 for detailed breakdown.
Assessment against VAGO Financial Sustainability Indicators
4.10 Council’s decision-making is reflected by the principles of sound financial management, to ensure our financial position is sustainable. We assess our financial performance using the VAGO financial sustainability indicators.
4.11 Council is forecasting a low-risk financial sustainability rating at mid-year, highlighted by the seven VAGO financial indicators below:
|
Indicator |
Forecast 2024/25 |
Budget 2024/25 |
Variance |
Risk |
|
Net Result |
4.2% |
3.9% |
0.3% |
Low |
|
Adjusted Underlying Result |
1.6% |
1.3% |
0.3% |
Medium |
|
Working Capital |
292% |
273% |
19% |
Low |
|
Internal Financing |
48% |
43% |
5% |
High |
|
Indebtedness |
3.1% |
3.1% |
0.0% |
Low |
|
Capital Replacement |
446% |
474% |
(28%) |
Low |
|
Infrastructure Renewal Gap |
207% |
214% |
(7%) |
Low |
|
Overall financial sustainability risk rating |
Low |
Low |
No Change |
Low |
4.12 The indicators generally need to be considered from a medium-term trend perspective rather than for the current financial year. A medium rating over one or two years is acceptable particularly in response to short-term events but over the medium to long-term, Council aims to achieve a low-risk rating overall.
4.13 Net Result per cent:
4.13.1 Net Result per cent assesses Council's ability to generate an operating surplus. The greater the result, the stronger the operating surplus. Budget 2024/25 included a 3.9 per cent net result due to an operating surplus of $10.5m.
4.13.2 There has been a minor increase in Net Result to a forecast of 4.2 per cent for 2024/25 but maintaining a low-risk rating. This is caused by the increase in operating surplus for the same reasons as the reduction in Councils cumulative cash surplus.
4.14 Adjusted Underlying Result:
4.14.1 Adjusted Underlying Result assesses Council’s ability to generate surplus in the ordinary course of business excluding non-recurrent capital grants and contributions to fund capital expenditure from net result.
4.14.2 A small or negative underlying result is normally budgeted due to the reliance on external funding/contributions to fund our infrastructure assets works. For instance, Open Space Contributions are collected, held in reserve, and use when required to fund upgrades, expansion and new public open space.
4.14.3 The mid-year financial review forecasts a medium risk result due to the same factors highlighted in the Net Result ratio (excluding open space contributions).
4.15 Workings Capital:
4.15.1 This working capital ratio assesses Council’s ability to pay short-term liabilities as they fall due (current assets/ current liabilities).
4.15.2 Council has no working capital issues at the forecast 292 per cent with a low-risk rating.
4.16 Internal Financing:
4.16.1 The internal financial ratio assesses Council’s ability to finance capital works using cash generated from its operations. A ratio below 100 per cent means cash reserves or borrowing are being used to fund capital works & major strategies, which is acceptable on occasions (short-term). A ratio above 100 per cent means that cashflows from operations are great than net capital outlays.
4.16.2 Internal financing was budgeted for 2024/25 at 43 per cent due to the significant land acquisitions planned in 2024/25 which is funded from drawdown on reserves. This is one-off due to this purchase and with internal financing is projected to increase back over 100 per cent in future years.
4.17 Indebtedness:
4.17.1 The indebtedness ratio assesses Council’s ability to repay its non-current debt from its own source revenue.
4.17.2 This indicator shows a low risk for Council with a forecast of 3.1 per cent which is consistent with budget and significantly lower than the 40 per cent target. Council has no current or planned borrowings in Budget 2024/25 and Long-Term Financial Plan.
4.18 Capital Replacement:
4.18.1 The capital replacement ratio assesses whether Council’s overall cash spend in renewing, growing and improving its asset base is enough.
4.18.2 Capital replacement has decrease slightly to 446 per cent (maintains a low-risk rating) caused by a net increase in capital expenditure deferrals.
4.19 Infrastructure Renewal Gap:
4.19.1 The infrastructure renewal gap ratio assesses Council’s spend on its asset base is keeping up with the rate of asset depletion (depreciation).
4.19.2 Forecast 2024/25 shows a small decline in the infrastructure renewal gap compared to Budget 2024/25 based on the updated mix of specific capital to be delivered. That said, it is significantly greater than the 120 per cent target.
Project Portfolio Update
4.20 The Project Portfolio has decreased by net $2.8 million to a 2024/25 forecast of $124.3 million. This includes:
4.20.1 $48.6 million of land purchases to be used for open space and recreation.
4.20.2 $66.2 million of capital program spend.
4.20.3 $13.5 million of operating program spend.
4.21 Portfolio deferrals and significant movements are published monthly in the CEO Report. Those identified in the mid-year review have been listed in attachment 3.
4.22 The portfolio status is tracking above the to the 12-month average with 73 per cent of projects reported On Track, 12 per cent At-Risk and 14per cent Off Track.
4.23 The key challenges impacting delivery continue to be:
4.23.1 Construction costs: Tenders and cost plans are still returning with significant increase in costs compared to budget.
4.23.2 Third Party Approvals: Delays in receiving external approvals (outside Council’s control).
4.23.3 Contractor availability: Competition for resources for design and construction with the State Government Big Build and other Councils that are also in year three of their council plans.
4.23.4 Resource market: recruitment is still competitive for project management and specialised roles.
Budget Requests
4.24 The quarterly review process is also used to identify and assess urgent and unbudgeted expenditure proposals. Additional information on budget requests can be found in Attachment 2.
4.25 The following budget requests are for consideration:
4.25.1 City Amenity Officer Additional Resourcing – Additional city amenity officer to allow the continuation of afternoon shifts during the summer months to extend throughout the entire year. This will allow two teams of two staff member to respond to concerns between 6am-6pm year-round rather than till 2pm outside of Summer Management temporary staffing.
4.25.2 Coastal Planning – Additional resourcing required to meet the minimum requirements set by the State and to ensure effective community and stakeholder consultation. This will enable the development of the Coastal Adaptation Plan and Foreshore Management Plan to continue in order to implement immediate actions along the 11km of highly valued foreshore and progress long term actions and significant community benefits for the entire municipality.
4.25.3 Sandridge Recreation Precinct Masterplan - The precinct comprises the Australia Post site and Bertie Street (Council-owned), North Port Oval (Crown Land managed by Council), and the Bunnings and DHL sites (privately-owned). The first stage of the project is to develop a masterplan for the entire precinct. This will allow us to proceed to deliver open space on Council owned and managed sites while also ensuring future integration with the Bunnings and DHL sites when those sites become available in future decades.
4.25.4 Open Space and Tree Maintenance Procurement - The original project dealt with preparing tender specifications to go to market with. As part of the development of the business case the project identified that an exit and Transition Plan is an essential requirement to ensure business continuity and successful contract changeover. A key requirement of the transition plan is to undertake contract specification compliance audits of various asset types to ensure these assets meet specification requirements at the commencement of the new contracts
5. CONSULTATION AND STAKEHOLDERS
5.1 The quarterly budget review and consideration of unbudgeted initiatives has been conducted after engagement with relevant stakeholders from across the business if required.
6. LEGAL AND RISK IMPLICATIONS
6.1 This quarter, there have two major changes initiated by the State Government which will have significant on Council operations:
6.1.1 The Congestion Levy will increase by 73% from 1 January 2026 to align with rates in Sydney. Currently Council pays $1.1m per year in congestion levy and this is projected to increase to $1.86m with the proposed increases over the next two years. This cost shift will have to be passed on to the public through increase pad parking rates across the municipality.
6.1.2 The Fire Services Property Levy (FSPL) will be replaced by the Emergency Services and Volunteers Fund (ESVF) from 1 July 2025. While the levy is being expanded to support a wider range of emergency services, the cost will be passed onto ratepayers by the State Government doubling the levy rate. The charge, which appears on rates notices, will grow from 8.7 cents for every $1000 of a property’s capital improved value, to 17.3 cents next financial year. Council is required to currently manage this levy on behalf of the State Government and the increase will likely cause significant price shock for ratepayers – Council will have to manage both the administrative burden and also the feedback from ratepayers.
6.2 As outlined in section 4, the Council’s financial sustainability risk is considered low based on projections resulting from the mid-year financial review (as budgeted). However, there are several specific risks that Council is facing:
6.2.1 Childcare utilisation continues to pose significant risk for Council. While there has been an improvement in long day care utilisation from 54% to 68% since February 2024, it is still below the short-term target of 70%. Officers are progressing on agreed actions including service review of children centres. Noting that it is likely that Council will not achieve average 70% across the year. Assuming similar utilisation levels continue into 2025, Council will likely experience losses of $200k-$300k for the service for the financial year.
6.2.2 High inflation continues to increase the cost base of our core services and projects. Melbourne (all groups) CPI inflation at 2.5 per cent (Dec 23 to Dec 24) and 0.1 per cent for the quarter. While inflation has stabalised it has been artificially impacted by electricity rebates and volatility in fuel prices (trim mean inflation is now 3.2%).
6.2.3 While rates collections continue to be strong, there has been a gradual rise in total debtors over the last three years. A 97% collection rates for 23/24 was well above our peers, it also means 3% or approx. $4m accumulates to our balance. Council commenced soft collection using an external contractor to refer collection activities which has proven to be successful. We have collected $3.1m out of $11m from letters of demand so far. We expect further success from SMS in January 2025.
6.2.4 Build to Rent developments have resulted in a significant reduction in Developer Open Space Contributions (currently estimated at $4.9m in foregone open space contributions for known developments). Council’s ability to sustainability fund future open space enhancement and new works is at risk.
6.2.5 The portfolio (including both capital and operating programs) continues to experience delivery risks for current and future years. The portfolio has been heavily review reviewed as part of the development of Budget 2024/25 to right size the portfolio however still poses a significant delivery risk for Council.
7. FINANCIAL IMPACT
7.1 Budget 2024/25 was adopted with a surplus of $0.62 million. As at the end of the second quarter the surplus has increased to $1.54 million (see Attachment 1).
7.2 If the budget requests (outlined in Attachment 2) are included the cash surplus would reduce from $0.59 million to $1.45 million.
7.3 Regardless of the budget requests, Council is forecasting a low-risk financial sustainability rating at mid-year.
8. ENVIRONMENTAL IMPACT
8.1 The mid-year financial review includes adjustments to Council’s project portfolio and considers delivery and environmental impacts.
8.2 The budget request for Coastal Planning will will inform the current and future economic, social and environmental viability of the foreshore in addition the Sandridge Recreation Precinct further improving green and open space within the municipality.
9. COMMUNITY IMPACT
9.1 The updated financial information presented as part of the second quarter financial 2024/25 review including ongoing careful financial management will continue to deliver benefits to the community and support to the local economy.
10. Gender Impact Assessment
10.1 Gender Impact Assessments (GIA) have not yet been completed for the budget requests and will be completed if the requests are approved.
11. ALIGNMENT TO COUNCIL PLAN AND COUNCIL POLICY
11.1 The second quarter review 2024/25 supports strategic direction 5 – “Well Governed Port Phillip” as a city that is a leading local government authority, where our community and our organisation are in a better place as a result of our collective efforts. This review helps to ensure that Port Phillip Council is cost-effective, efficient and delivers with speed, simplicity, and confidence.
12. IMPLEMENTATION STRATEGY
12.1 TIMELINE
12.1.1 The initiatives proposed can commence immediately if approved by Council.
12.2 COMMUNICATION
12.2.1 Since the Budget was set new information on the costs of initiatives and accuracy of forecasts has been received.
12.2.2 These changes are reflected in updated forecasts in the monthly CEO report. This includes major changes including deferrals associated with the project portfolio.
12.2.3 While Council’s financial position remain sounds, there are financial risks materialising. Council is required to continue managing its finances prudently
13. OFFICER MATERIAL OR GENERAL INTEREST
13.1 No officers involved in the preparation of this report has declared a material or general interest in the matter.
|
ATTACHMENTS |
1. Financial Statements - December 2024 2. Budget Requests December 2024 3. Portfolio Updates and Achievements - December 2024 |
Meeting of the Port Phillip City Council
19 February 2025
|
South Melbourne Town Hall Renewal & Upgrade - Project Update |
|
|
Executive Member: |
Lachlan Johnson, General Manager, Operations and Infrastructure |
|
PREPARED BY: |
Vicki Tuchtan, Manager Property and Assets Karen Miller, Manager Project Delivery Anthony Savenkov, Head of Real Estate Portfolio (Development & Transactions) |
1. PURPOSE
1.1
This report provides an update on the refurbishment of
the South Melbourne Town Hall which is currently in construction. This report
outlines significant additional works that are required as a result of the
condition of the heritage building, to make the building safe and compliant for
future use. The report recommends that Council increase the budget for the
project by $6.5m, funded through reprioritisation of the portfolio and through
the prudent use of savings and reserve, to address these issues.
2. EXECUTIVE Summary
2.1 Council is currently undertaking construction works to refurbish the South Melbourne Town Hall (SMTH) to bring the heritage building into compliance with modern building standards. These works will ensure that the building is compliant and safe and will enable future works by the Australian National Academy of Music (ANAM) to reopen the Town Hall as a performance, arts, cultural and education facility.
2.2 Works commenced in mid-2024. Since then, as the main works contractor has gained access into previously inaccessible spaces, major issues with the existing condition of the building have been discovered. This includes the presence of hazardous material (asbestos) in areas of the building, degraded structural elements, water ingress and reduced earthquake resilience.
2.3 To ensure the safety of the public and to meet minimum Building Code and legislative requirements, it is necessary to remove the hazardous materials and undertake extensive structural and seismic strengthening throughout the building.
2.4 Addressing these items, and the broader scope of compliance and safety works, is not discretionary. It is not possible to make the building safe and meet compliance requirements without addressing these issues as part of the current refurbishment project.
2.5 The existing project budget included $3.5m (Ex. GST) of contingency to manage risks throughout construction. This existing contingency allowance is insufficient to deal with the uncovered conditions and hazardous materials.
2.6 As outlined in this report, it is recommended that Council increase the project funding by approximately $6.5m (Ex. GST) to enable the removal of the hazardous materials, the seismic strengthening of the building and to address the structural integrity and water ingress issues along the permitter of the roof.
2.7 In line with Council’s Financial Strategy, it is recommended that the budget increase be funded through savings from projects in the current year’s portfolio, reallocation of unbudgeted rental revenue and the proceeds of a commercial settlement, a drawn down on the Asset Renewal Reserve in 2025/26 and from portfolio capacity in 2026/27.
2.8 It is also recommended that as part of the development of the new Council Plan, that opportunities be identified to replenish the Asset Renewal Reserve noting that the drawn down recommended in this report will likely reduce the value of the reserve from $12m to approximately $9m.
2.9 Separate to the major issues that are the main subject of this report, the report also outlines the plan to reinstate Assist services at the SMTH which has been closed since the ceiling collapse in 2018. The reinstatement of the Assist Counter is to be funded from Council’s existing Workplace Plan Program.
2.10 This report also outlines a request from ANAM to relocate heritage items within the SMTH to facilitate their planned works. The town hall contains numerous civic and cultural items, which are of significance in both themselves but also their location and prominence within the building. Officers are supportive of the relocations and recommend that Council endorse the adjustments.
|
That Council: 3.1 Approves a budget increase of $6,500,084 (Ex. GST) that is required to complete the South Melbourne Town Hall works. This will result in the current budget of $32,917,229 (Ex. GST) being increased to $39,417,313 (Ex. GST). 3.2 Notes that the additional funding is to be sourced from savings from across the current 2024/25 portfolio, through unbudgeted rental and other income, through a draw down on the Asset Renewal Reserve (ARR) in 2025/26 and from portfolio capacity in 2026/27. The drawn down of the ARR is anticipated to reduce the balance from approximately $12m to $9m. 3.3 Notes a delay to the SMTH program of approximately nine (9) months for the current asbestos and known seismic delays. 3.4 Approves the reinstatement of the Assist Service Counter in the south-western corner of the refurbished town hall and approves the $200k (Ex. GST) of funding for the associated works from the existing Workplace Plan Program. 3.5 Approves the relocation of heritage items within the SMTH as outlined in this report. 3.6 Authorises the Chief Executive Officer to approve variations to the construction contract and relevant consultants within the overall project budget of $39,417,313 (Ex. GST). 3.7 Delegates the authority to the Chief Executive Officer, or their delegate, to approve contract variations and execute those variations as required within the approved values. 3.8 Notes that as outlined in Confidential Attachment 1 that the recommended budget increase sits within a lower and upper bound of potential risks. |
4. KEY POINTS/ISSUES
4.1 The South Melbourne Town Hall (‘the SMTH’) is located on City of Port Phillip freehold land at 208-220 Bank Street South Melbourne, within the Emerald Hill arts and culture precinct.
4.2 The Australian National Academy of Music (ANAM) has been the major tenant of the SMTH since 1996, following an agreement reached by the City of Port Phillip and the Victorian Government.
4.3 Following a ceiling collapse in 2018, the SMTH has been temporarily closed to the public and Council is committed to reopening this valuable community asset.
4.4 Following a series of investigations, community engagement, and extensive negotiations, Council subsequently entered into an Agreement for Lease (AFL) with ANAM in November 2023 that outlined the pathway to refurbish the building and reopen it. The AFL requires Council to bring the SMTH to a basic, tenantable condition, including being structurally sound (‘Landlord’s Works’), ANAM is then required to invest up to $40m in the building.
4.5 Since this time, Council officers and ANAM have worked closely to coordinate each work package. A Joint-PCG has been established and provides oversight and coordination between Council and ANAM including shifting works between the Tenant’s and Landlord’s projects to deliver efficiencies and avoid regret spend.
4.6 To deliver Council’s Landlord Works, in June 2024 Council executed a construction contract with McCorkell Constructions Pty Ltd for a value of $21,165,280 (Ex. GST) and site set up and investigation works commenced on-site.
4.7 As a result of the investigations, particularly in areas that were previously inaccessible, a significant number of issues have been identified with the condition of the existing heritage building. These issues mean that additional work is required to address safety and minimum legislative compliance issues including the removal of hazardous materials.
Asbestos Safety & Compliance
4.8 As part of the SMTH main works contract McCorkell installed birdcage scaffolding in the Ballantyne Room to access the underroof space and upon inspection of the structure suspicious samples were identified and tested.
4.9 The testing identified the presence of asbestos, in particular friable asbestos, that was not identified through the due diligence inspections and testing during the design phase and early works due to the inaccessibility of the areas at the time. Further testing was done in other locations that were previously inaccessible, leading to the identification of further friable asbestos in dust and fragment samples in other areas in the SMTH.
4.10 To comply with legislation and to ensure public safety, the asbestos must be appropriately removed and, where appropriate, isolated and made safe.
4.11 Whilst it was anticipated that asbestos would be encountered during the works, the extent, nature and locations far exceeded what was planned for and expected.
4.12 Asbestos remediation works, particularly those relating to friable asbestos, are costly in nature due to the stringent OH&S requirements when conducting the works. OH&S requirements include qualified hygienists and associated monitoring equipment, registered asbestos removalists, cordoning off areas in plastic bubbles, negative pressurisation of space to reduce the likelihood of material escaping the building envelop, incorporating provision of safe washdown areas, temporary structures to allow working from heights etc.
4.13 The removal of the asbestos, or make safe, has been costed with both lump sum and estimated schedule of rates components, and is expected to take up to six (6) months.
4.15 Setup works was undertaken prior to Christmas 2024 and remediation works commenced on the 14 January 2025.
Seismic Compliance
4.16 Building Regulations require Council to bring the heritage building into compliance with modern building standards. Council meeting these obligations is a key element of the Landlord’s Works as outlined under the AFL. These standards, include strengthening the building so that it is seismically resilient in the event of an earthquake. The process to quantity the existing building’s earthquake resilience and to design appropriate strengthening (where required) is extremely complex.
4.17 To progress the seismic investigation and design a specialist firm was commissioned to undertake the onsite seismic investigations commencing on the 15 January 2024, the results of the testing was issued to Council on 11 June 2024.
4.18 This process occurred in parallel with the tender process for the main works which were awarded by Council in April 2024. Based on the best information available at the time, indicating that the building had a higher than anticipated level of seismic resilience, a modest contingency was included as part of the award,
4.19 Following further investigation, including accessing the previously inaccessible ceiling spaces in the building, and further destructive testing of existing building elements, the scope of the works required to meet the Building Code significant increased.
4.20 Designs have now been completed for the Eastern Annex and Main Hall (approximately 50% of the building). Costings for this work exceeded Council’s contingency allowance for dealing with the seismic risk across the whole building.
4.21 The seismic design of the South Wing (including the clocktower) and West Wing is currently on hold due to access issues due to the identification of asbestos. The project team is exploring how sufficient site information can be provided to the structural engineers to enable them to progress the design, The cost and program impact of these works will not be known until the design is completed but it is recommended that Council allocate additional funding to manage the works in these areas.
Structural Safety
4.22 As part of the main works, it has been discovered that there are significant issues with the rendered parapets on the perimeter of the building. The parapets in areas are unstable and, due to their degradation, are leaking into the underside ceiling spaces.
4.23 To ensure public safety, and meet the requirements of the Building Code, additional work is required to address the stability and water proofing of the parapets and gutters.
4.24 The original scope of the construction works only called for minor rectifications to the parapets.
4.25 Once access was enabled by the main works contractor to the underside ceiling spaces under large sections of the parapets, it has become apparent that the existing condition of the building in these areas is significantly more degraded than forecast. There are issues of varying levels with the majority of the parapets. It was not possible to assess many of the undersides of the parapets prior to the main works commencing.
Overall Impact
4.26 The degraded condition of the heritage building in key spaces alongside the discovery of extensive hazardous materials of a type and nature that are particularly costly and difficult to manage, have resulted in major scope increases to the refurbishment. As Council’s project is focusing on safety and compliance upgrades, there is very little scope for scope reductions to offset the increased cost and time to deal with these matters.
4.27 Whilst Council officers will continue to work with ANAM to realise opportunities for further savings, by integrating work packages and reducing potential regret spend, these efforts will not bridge the significant financial shortfall of managing these issues.
4.28 As outlined in the confidential attachments to this report, it is recommended that Council increase the funding for the SMTH refurbishment project by approximately $6.5m (Ex. GST).
4.29 As outlined in the risk section of this report and in the confidential attachment, the recommended $6.5m increase makes reasonable provision for contingency for the remaining works factoring in the nature of the building, but, there continues to be risk with the delivery of the works.
5. CONSULTATION AND STAKEHOLDERS
5.1 As outlined, Council and ANAM are working closely on integration opportunities. These opportunities are important as they potentially reduce both Council and ANAM’s costs but also reduce the likelihood of regret spend. To date, this coordination has enabled a reduction in the Landlord’s work of over $500k.
5.2 The increased construction period as a result of the building condition and hazardous materials provide further opportunities for better integration and to ultimately reopen the building sooner.
5.3 ANAM has requested that Council consider a number of proposals to do ANAM works concurrently with Council’s works and hence reduce the overall program. The proposals include construction of early hydraulics works, Main Hall ceiling works infrastructure, a mezzanine floor in the West Wing, access stair/ladder to the northeast Main Hall Roof, and demolition of a portion of the West Wing new structural/building envelope works.
5.4 Council’s and ANAM’s project teams are working collaboratively to agree workable approvals and contractual arrangements to incorporate these works either into the Council’s main works contract or for the works to be done concurrently through a separate contract administered by ANAM.
5.5 Whilst these integration investigations are progressing, they have not yet been agreed. Any arrangement that is mutually beneficial would be subject to both commercial terms and agreement under the AFL.
6. LEGAL AND RISK IMPLICATIONS
6.1 Council has obligations under the Occupational Health and Safety Act 2004 to ensure that the construction works are carried out in a safe manner. The remediation of the asbestos is required to meet this obligation and to provide an occupiable tenancy once Council’s works are completed.
6.2 To provide a compliant facility to the applicable Building Code standards the seismic strengthening works must be incorporated into the construction works.
6.3 Council has signed an Agreement for Lease (AFL) with ANAM and this requires Council to provide a compliant facility.
6.4 Whilst these additional works are significant, there is no discretion available to Council. To deliver a compliant and safe building that meets Council’s legal obligations and the commitments under the AFL the additional works must be completed.
6.5 As outlined in the confidential attachment, there is risk associated with addressing the issues across the building. The $6.5m (Ex. GST) budget increase, alongside existing commitments and provisions in the current project budget, make allowance for the financial implications of these risks.
6.6 The confidential attachment outlines the recommended contingency provision, and provides and estimated lower bound and upper bound range for potential contingencies. Further, the attachment outlines the timing of these risks and when Council will have a view as to whether a risk remains likely.
6.7 As can be observed in the confidential attachment, the risk elements associated with the asbestos removal, seismic strengthening works and associated other elements are likely to be known between March 2025 and June/July 2025 subject to construction progress. Broader project risk is likely to remain until major works are completed in March 2026 ahead of completion of the entire project later that year.
7. FINANCIAL IMPACT
7.1 Council approved on the 17 April 2024 a revised project budget of $32,917,229.
7.2 Resulting from the identification of additional asbestos requiring remediation, the progression of the seismic design, and design revisions required based on other latent conditions encountered during this period, the estimated total project cost is $42,189,171.61.
7.3 The additional budget required is therefore $9,271,942.61 excluding GST.
7.4 Refer to confidential Attachment 1 for further financial and program impact details.
7.5 The $9,271,942.61 excluding GST of additional budget request is significant. A drawdown on the Asset Renewal Reserve is required to fund this additional capital expenditure. Investment income will be impacted annually, up to $0.47 million of income reduction.
7.6 The revised year-on-year cashflow is projected as follows:
|
23/24 and Prior Years |
24/25 |
25/26 |
26/27 |
Total |
|
$4,518,000 |
$6,000,000 |
$20,000,000 |
$11,671,171 |
$42,189,171 |
8. ENVIRONMENTAL IMPACT
8.1 ESD requirements for the Council renewal works have been incorporated in the renewal construction documentation being implemented by the contractor.
8.2 The Contractor is required to manage all activities on site in accordance with the Environmental Protection Act and all other relevant legislation. The waste from the asbestos remediation will be disposed of in accordance with the relevant legislation.
8.3 ANAM has progressed the ESD requirements within their Design Development documentation recently submitted to Council that includes energy efficient lighting, electric stovetops and ovens, roof solar system with battery storage, water efficient fixtures and fittings and rainwater capture, storage and recycling.
8.4 Council’s Sustainability Team have been identified as a stakeholder for design consultation to assist in ensuring that project outcomes incorporate Council’s sustainability outcomes in the proposed works as much as reasonably possible.
9. COMMUNITY IMPACT
9.1.1 The refurbishment of the Council Chambers and ancillary services, which provides the opportunity for Council to hold Council meetings at the SMTH. The lease in the AFL allows for up to 9 Council meetings annually within the facility.
9.1.2 The refurbishment of the Main Hall and provision of other performance spaces with much improved acoustics, provision of a commercial kitchen, refurbishment and expansion of toilet facilities and an outdoor terrace provides for flexible event hire spaces available for the public or Council for community or private events as well as ANAM specific events. The lease in the AFL allows for Council to conduct up to 5 citizenship ceremonies annually within the main hall.
9.1.3 The refurbishment of the Main Hall and performance spaces for hire facilitates the AFL requirement for an access licence to be provided by the Tenant to permit the South Melbourne Symphony Orchestra access to the main hall and other performance spaces for performances and rehearsals and storage of equipment.
9.1.4 The AFL also provides for ANAM to provide free annual memberships for Port Phillip residents to experience ANAM events.
9.1.5 Once the works are completed ANAM is obligated under the AFL to establish the South Melbourne Town Hall Cultural Fund. The fund’s purpose is funding the presentation of arts and cultural activities including subsidising venue hire charges at the SMTH.
9.1.6 The design in general includes preservation of the historical features of the SMTH in accordance with the Conservation Management Plan.
9.2 The local community and stakeholders that utilise the site have been impacted due to the closure of the SMTH.
9.3 Council ASSIST Counter services at the town hall have been temporarily closed due to building closure.
9.4 Other community stakeholders who utilise space at the town hall have been advised of the closure, with many in the process of moving to or identifying alternate locations in the interim while repairs and renewal works are undertaken.
10. Gender Impact Assessment
10.1 A gender impact assessment has been undertaken on the redevelopment of the SMTH and the results of the assessment have been incorporated into the Landlord’s works.
11. ALIGNMENT TO COUNCIL PLAN AND COUNCIL POLICY
11.1 The South Melbourne Town Hall renewal and upgrade aligns to the following Council Plan Strategic Direction:
11.1.1 Strategic Direction 4 – Vibrant Port Phillip
11.2 An upgraded and re-opened open Town Hall fosters creative, diverse, and inclusive participation in our arts and culture while supporting community activation as well as the heritage and unique identity of Port Phillip.
12. IMPLEMENTATION STRATEGY
12.1 TIMELINE
12.1.1 The estimated extension to the completion date for Council’s works is to December 2026. The completion date is likely to be further extended once the seismic strengthening, ANAM tenant variations and other latent conditions are finalised.
12.1.2 Discussions will continue with ANAM in regard to implementation of their ECI proposals and the potential to reduce the overall program for their works.
12.2 COMMUNICATION
12.2.1 The adjacent properties have been notified of the requirement for hazardous materials remediation within the building.
12.2.2 Council’s website will be updated to reflect the status of the construction works and the extended timelines.
13. OFFICER MATERIAL OR GENERAL INTEREST
13.1 No officers involved in the preparation of this report has declared a material or general interest in the matter.
|
ATTACHMENTS |
1. Confidential- Financial and Program Impact 2. Heritage Items |
Meeting of the Port Phillip City Council
19 February 2025
|
MAV State Council Submission |
|
|
Executive Member: |
Brian Tee, General Manager, City Growth and Development |
|
PREPARED BY: |
JAMES GULLAN, HEAD OF GOVERNANCE Elizabeth Cowin, Coordinator Advocacy, Grants & Partnership |
1. PURPOSE
1.1 To seek Council’s endorsement of one (1) motion to be put forward to the Municipal Association of Victoria (MAV) State Council meeting on 16 May 2025. The proposed motion calls on the MAV to take a greater role in advocating for community safety measures to support local communities.
2. EXECUTIVE Summary
2.1 Council has a strong commitment to advocating on behalf of the Port Phillip community. Submitting motions to the MAV State Council supports Council’s practice of advocating through formalised partnerships and memberships.
2.2 The Municipal Association of Victoria (MAV) State Council Meeting will be held on 16 May 2025.
2.3 Motions from member councils on issues of state-wide significance to local government are due by midnight on 17 March 2025.
2.4 This report recommends one (1) motion for the MAV to advocate regarding community safety and cohesion in collaboration with the City of Stonnington, Bayside City Council, and Glen Eira City Council.
|
That Council: 3.1 Endorse submitting the following motion to MAV State Council, in collaboration with the City of Stonnington, Bayside City Council, and Glen Eira City Council to the Municipal Association of Victoria (MAV) State Council Meeting on 16 May 2025: 3.2 “Fostering community safety and social cohesion” (Attachment 1) – That the Municipal Association of Victoria (MAV) advocates to the Victorian Government to: 3.2.1 Request additional Police resourcing as well as a commitment to joint patrols with Local Laws staff when required. 3.2.2 Provide dedicated funding streams and resources for local councils to implement evidence-based community safety initiatives that promote social cohesion and inclusivity. These initiatives may include infrastructure improvements (e.g. improved lighting, clear and effective signage, graffiti removal, safer pedestrian routes), delivery of events, community engagement programs, and anti-discrimination measures enhancing local laws units. 3.2.3 Support councils to work with local community groups and stakeholders to co-design place-based and/or targeted solutions that address specific local safety concerns and support community-based organisations, such as Neighbourhood Watch, to educate residents about safety, share resources, communicate and promote social cohesion. 3.2.4 Enhance community safety initiatives by improving access to Closed-Circuit Television (CCTV) resources for community groups, expanding the availability of CCTV mobile trailers for Victoria Police, and fostering stronger community-police partnerships through safety engagements such as “Coffee with a Cop”. 3.2.5 Invest in statewide programs such as Welcoming Cities and YourGround that empower councils to address the unique safety concerns of diverse and vulnerable community groups, including women, youth, and culturally and linguistically diverse (CALD) communities. 3.3 Authorises the Chief Executive Officer, or their delegate to make any minor amendments that do not change the material intent of the Motions. |
4. KEY POINTS/ISSUES
About MAV/State Council Meeting:
4.1 The Municipal Association of Victoria (MAV) is a membership association and the legislated peak body for local government in Victoria.
4.2 State Council is the governing body of the MAV and when it meets, State Council debates motions proposed by member councils to determine the strategic direction for the year ahead.
4.3 The MAV offers diverse business services to council members including specialist policy and advocacy, governance and legislative advice, sector development, insurance, and procurement services.
4.4 The MAV Strategy 2021-25, adopted at the May 2021 State Council meeting, identifies six MAV Strategic Outcomes:
· Economically sound councils
· Healthy, diverse and thriving communities
· Well-planned, connected and resilient built environment
· Changing climate and a circular economy
· Sector capability and good governance
· Effective and responsive MAV.
4.5 The City of Port Phillip is a member of the MAV and Council is represented by Cr Libby Buckingham.
4.6 The MAV will be holding its Annual State Council Meeting on 16 May 2025.
4.7 Motions are being sought from member Councils on issues of state-wide significance to local government.
Requirements for Submission:
4.8 Motions must be submitted online by 17 March 2025 using the State Council Motion Submission Form.
4.9 The form is in a ‘survey’ format and requires that councils identify:
· that the motion has been the subject of a council resolution (and the date of the council meeting);
· whether the motion or item is of strategic relevance to the MAV or of such significance to local government that it ought to be considered at the meeting;
· that the motion is not repetitive in form or substance of a motion or item considered at the most recently held meeting of the State Council in August 2024 and, if so, provide a rationale for the duplication.
4.10 Motions initially assessed as ‘not of state-wide significance’ will referred to the submitting council’s designated representative, then reviewed by the MAV CEO, and finally by the MAV Board, who determine whether the motion is submitted for State Council consideration.
4.11 Motions must align with one or more priorities identified in the MAV Strategic Plan 2024-2027.
· The recommended motion aligns to priority 2 – Connected Places and priority 8 – Diversity, equity and inclusion, in the MAV Strategic Plan.
4.12 MAV have indicated that joint submissions will be favourable considered.
· Council officer engagement with counterparts at Stonnington, Bayside, and Glen Eira has elicited that this topic has strong support and interest for both our local areas and the sector more broadly.
Background:
Motion: Fostering community safety and social cohesion
4.13 The full motion, including rationale, is at Attachment 1.
4.14 Concerns have been raised by the City of Port Phillip community, including traders, about antisocial and illegal behaviour (including public drug and alcohol use, dealing, abuse and harassment of passersby). Council receives many complaints about the issue, its impacts upon amenity, safety, perceptions of safety and the appeal of high streets and other areas as vibrant, attractive and safe places to visit.
4.15 The MAV note that “Local government plays a critical role in promoting community safety and supporting crime prevention activities at the local level, and are best placed to understand the needs of their community.” City of Port Phillip’s position is committed to ensuring that the municipality is a safe, liveable and just community.
4.16 Consistent with these positions, and noting that the State government has the most significant policy and funding levers available to them to address concerns of community safety and cohesion, this motion calls on the MAV to advocate to the State Government for funding and resourcing support that will, in partnership with Local Government and other community organisations, support our local communities to feel safe and cohesive as a community.
4.17 This motion as drafted will strengthen Councils' capacity to deliver programs and services that address local and regional safety concerns and ensures more consistency in the allocation of resources for community safety across the State. It also encourages partnerships between local government, Victoria Police, community organisations, and state/federal governments to tackle systemic issues like racism, discrimination (including the recent, alarming rise in antisemitism), and gender-based violence.
4.18 Submitting this motion collaboratively with Glen Eira, Bayside and Stonnington will amplify its impact, and display our collective commitment to advocating for our communities, which share many like concerns and demographics, on this important issue.
5. CONSULTATION AND STAKEHOLDERS
5.1 Issues addressed by this MAV motion have been raised through consultation with community stakeholders, trader associations, and are in line with in the Creative and Prosperous Cities Strategy and Council plan.
5.2 The MAV motion has been drafted in consultation with the City of Stonnington, Bayside City Council, and Glen Eira City Council and will be submitted as a joint motion.
6. LEGAL AND RISK IMPLICATIONS
6.1 The notice of motion proposed is consistent with Council’s role and powers as set out in the Local Government Act 2020 (Part 2- Division 1).
7. FINANCIAL IMPACT
7.1 Resourcing for community safety and social cohesion initiatives could become increasingly difficult to support from council budget.
8. ENVIRONMENTAL IMPACT
8.1 There is no direct environmental impact.
9. COMMUNITY IMPACT
9.1 Council receives many complaints from residents and traders about community safety and social cohesion, including the impact on safety, amenity, perceptions of safety and the appeal of high streets and other areas as vibrant, attractive and safe places to visit.
9.2 These issues are complex, and their resolution does not sit exclusively with the City of Port Phillip. Collaboration with other levels of government, police, health and other services are essential.
10. Gender Impact Assessment
10.1 This report has no direct or significant impact on the community.
11. ALIGNMENT TO COUNCIL PLAN AND COUNCIL POLICY
11.1 The proposal aligns with Council’s Well-Governed Port Phillip service direction: A city that is a leading local government authority, where our community and our organisation are in a better place as a result of our collective efforts.
11.2 We will facilitate and advocate for other levels of government to recognise and be mindful of the impact on local government when making policy and legislative changes.
12. IMPLEMENTATION STRATEGY
12.1 TIMELINE
MAV Timelines
12.1.1 Engage other councils on endorsed motions to solicit support for a potential joint application.
12.1.2 Proposed motions to be submitted by midnight on 17 March 2025.
12.1.3 Accepted motions will be circulated to member councils and discussed at the MAV State Council Meeting on Friday 16 May 2025 ahead of a vote from all Council representatives present.
12.2 COMMUNICATION
12.2.1 Councillors will be advised of the outcome of the MAV State Council Meeting.
13. OFFICER MATERIAL OR GENERAL INTEREST
13.1 No officers involved in the preparation of this report has declared a material or general interest in the matter.
|
ATTACHMENTS |
1. MAV Motion - Fostering safety and social cohesion |
Meeting of the Port Phillip City Council
19 February 2025
|
St Vincent Gardens - Playground Upgrade RFT000324 (Landscape Contract award) |
|
|
Executive Member: |
Lachlan Johnson, General Manager, Operations and Infrastructure |
|
PREPARED BY: |
Karen Miller, Manager Project Delivery Paula Kilpatrick, Head of Open Space - Foreshore and Open Space Emma Mydaras, Project Manager Naomi Blashki, Senior Project Manager - Open Spaces |
1. PURPOSE
1.1 To recommend the awarding of Tender RFT000324, St Vincent Gardens – Landscape Contractor to Open Space Victoria Pty Ltd (ABN 20644937726) for the St Vincent Gardens – Playground Upgrade.
2. EXECUTIVE Summary
2.1 St Vincent Gardens is located at St Vincent Place Albert Park. It houses a bowling and tennis club, as well as a playground and picnic area.
2.2 St Vincent Gardens, is classified as having national significance for its English-style design and surrounding crescent. Designed by Clement Hodgkinson in 1868 the garden reflects the Georgian era. Tree plantings are arranged in symmetrical patterns with themed plantings throughout the garden's timescale, four of which are registered with the National Trust.
2.3 The existing playground located within the gardens is installed in two zones, an infants/junior and a senior play area. The equipment is nearing the end of useable life, requiring an increasing number of repairs and replacements and is therefore due for removal. These upgrades are guided by Council's Public Space Strategy adopted 2021 and the most recent annual Playground Safety Audit.
2.4 Council has allocated $1.8M to design and deliver landscape renewal and playground upgrade works at St Vincent Gardens.
2.5 The funding includes a new playground and park upgrade works to the western end of the park.
2.6 The proposed design gives the park a refresh whilst still preserving the Heritage character of the park.
2.7 In accordance with the provisions of the Local Government Act 2020 (Vic) and Council’s Procurement Policy, a public procurement process was conducted to identify a suitable contractor for the construction works.
2.8 Officers are recommending Council approval to enter into a Contract with Open Space Victoria Pty Ltd for the construction of The Playground.
2.9 The recommended tenderer’s price received is within the project budget and is considered to represent a true and appropriate cost to deliver the required works.
2.10 Subject to the decision of Council, construction works will commence in late April 2025 and be completed by 29 August 2025.
|
That Council: 3.1 Awards Tender RFT000324 to Open Space Victoria Pty Ltd for the construction of the St Vincent Gardens Playground Upgrade for a total award value of $1,006,857.28 excluding GST ($1,107,543.01 including GST). This value includes a six-month maintenance cost of $13,667.80 excluding GST ($15,034.58 including GST). 3.2 Notes that the contract includes contingency and other project/service costs as detailed in confidential attachment 1. 3.3 Authorises the Chief Executive Officer, or their delegate, to execute the Contract Document on behalf of Council and to approve any variations to the total value detailed in confidential attachment 1. 3.4 Notes that construction works are expected to commence in late April 2025 and be completed by 29 August 2025. |
4. KEY POINTS/ISSUES
Summary of Procurement Process
4.1 RFT000324 was publicly advertised on Tenderlink and closed on 06 November 2024. Two submissions were received in response.
4.2 Tenders were assessed in accordance with the principles of the Procurement Policy, as well as the evaluation criteria and weightings set out in the procurement plan agreed by the tender Evaluation Panel prior to the procurement process. Refer to the attached confidential Tender Evaluation Report for further details (Attachment 1).
4.3 An independent probity advisor has assisted in the procurement and evaluation process. The probity report is attached to the Confidential attachment 1.
Scope
4.4 St Vincent Gardens, Albert Park playground sits at the western end of the garden of St Vincent Place North and South and Merton Street, roughly aligning the axis of the footpaths on the east of the playground area.
4.5 St Vincent Gardens West is part of the St Vincent Place Precinct, which is registered on the Victorian Heritage Register for its aesthetic, historical, architectural and social significance to the State of Victoria.
4.6 St Vincent Place Precinct is included on the Schedule to the Heritage Overlay (HO) of the Port Phillip Planning Scheme (HO258).
4.7 The St Vincent Place precinct was first designed in 1854 or 1855, probably by Andrew Clarke, the Surveyor-General of Victoria.
4.8 The current layout is the work of Clement Hodgkinson, the noted surveyor, engineer and topographer, who adapted the design in 1857 to allow for its intersection by the St Kilda railway.
4.9 The St Vincent Place Precinct is architecturally important for the consistent quality of its built form and its high degree of intactness from its earliest phase of development, characterised by a mixture of one and two storey terraces and detached houses.
4.10 The design of the St. Vincent Gardens is nationally significant as reinforcing the development of the precinct about a central axis and sight line, creating a bi-lateral symmetry reminiscent of earlier French spatial arrangement.
4.11 The St. Vincent Gardens are significant for their collection of mature trees, including trees placed during the earliest period of development and trees which are individually listed on the National Trust's Register of Significant Trees in the State of Victoria.
4.12 The design is a subtle update which will refresh The Park while preserving its character.
4.13 The upgrade includes construction of new:
· paths, paving, kerbs and edging
· rubber play surface
· garden beds
· drainage
· play equipment and furniture
· nature play
· trees, shrubs and groundcover planting
5. CONSULTATION AND STAKEHOLDERS
5.1 Community consultation on the draft Concept Plan was conducted in June and September 2019 prior to the project being put on hold due to Covid-19.
5.2 The project re started in 2023 and community consultation on the revised Concept Plan was conducted 22 September 2023 until 15 October 2023. Overall, the community was supportive of the draft Concept Plan.
5.3 Of the responses received, the following key themes were identified:
· There was a strong preference that equipment for different ages/ abilities of children were separated.
· There were requests for additional junior play items and more slides.
· The swings are highly valued by the community. The preference was to maintain the existing type and quantity of swings however welcomed the addition of the basket swing.
· There was only limited support for the sandpit.
· The preference for playground material is that it is sympathetic to the heritage of the site.
· More seating, a shelter and accessibility were also highlighted as important to the community.
5.4 Information received from the community during the consultation period was used to update the Concept Plan and progressed to detailed design.
5.5 The Project webpage and Have Your Say webpage will continue to be updated as the project progresses to provide up to date information to the community and user groups.
6. LEGAL AND RISK IMPLICATIONS
6.1 The recommended tenderer, Open Space Victoria Pty Ltd hold public and product liability insurance, contract works insurance, plant and equipment insurance and work cover insurance equal to, or in excess of that specified in the tender terms and conditions.
6.2 Two bank guarantees of 2.5% each, as security for City of Port Phillip for the total of 5% of the contract lump sum will be required from Open Space Victoria Pty Ltd.
6.3 The tender process has been conducted in accordance with Sections 108 and 109 of the Local Government Act 2020 and Council’s Procurement Policy
6.4 A probity advisor, Anne Dalton and Associates, provided probity advice throughout the procurement process and reviewed the tender and evaluation process to ensure that probity principles were adhered to.
6.5 As outlined in the attached confidential Tender Evaluation Panel report, an extensive financial risk assessment has been undertaken with the preferred contractor.
6.6 The TEP assessed the viability of the pricing by comparing the submitted elements of the lump sum to that of the cost plan prepared by the quantity surveyor prior to tender.
7. FINANCIAL IMPACT
7.1 A total budget of $1,821,228 exclusive of GST ($2,003,350.80 including GST) was allocated to the project.
7.2 Note this project is 50% funded from Open Space Contributions.
7.3 The recommended total contract value, inclusive of required works contingency and contaminated soil contingency is within this allocated budget.
8. ENVIRONMENTAL IMPACT
8.1 The project retains all trees and current garden bed planting.
8.2 The new park will provide increased canopy cover, additional garden bed planting and tree planting.
8.3 Reuse of landscape materials.
8.4 Inclusion of nature play.
8.5 Upgrades will provide better protection layer to contaminated soil.
9. COMMUNITY IMPACT
9.1 The project will provide additional open space and align with Council’s vision to create a well-connected network of public spaces for all people that nurture and support the health, wellbeing, social connection, creative expressions, economy and environment of our community.
10. Gender Impact Assessment
10.1 A Gender Impact Assessment (GIA) was completed in July 2024.
10.2 During consultation, Council heard feedback relating to the importance of equipment for different ages/ genders of children and the need for seating/ shelter and accessibility to be improved.
10.3 The playground and path networks were designed to enhance the experience for all users and to allow accessible opportunities for all in response to the recommendations of the GIA.
11. ALIGNMENT TO COUNCIL PLAN AND COUNCIL POLICY
11.1 Councils Play Space Strategy 2011 includes an action to formalise the edge of the playground and provide seating in closer proximity to play equipment.
11.2 The tender process has been conducted in accordance with Sections 108 and 109 of the Local Government Act 2020 and Council’s Procurement Policy.
11.3 St Vincent Gardens Upgrade aligns to the following Council Plan Strategic Directions:
11.3.1 Inclusive Port Phillip
The Park upgrade will improve accessibility with new paths and accessible playground equipment and furniture.
Quality public open space improves the liveability for the community.
Quality public open space increases visitation and improves vibrancy for the community.
12. IMPLEMENTATION STRATEGY
12.1 TIMELINE
The next steps, are as follows:
· February 2025 – Subject to decision of Council, award main works package to Open Space Victoria Pty Ltd.
· March to April 2025 – Communicate works program schedule to the community to inform of upcoming works.
· Late April 2025 – Open Space Victoria Pty Ltd commence onsite construction works.
· Late August 2025 – Onsite construction completed.
13. COMMUNICATION
13.1 Council officers will update the project website regularly and on-site signage will be displayed to inform local residents.
14. OFFICER MATERIAL OR GENERAL INTEREST
14.1 No officers involved in the preparation of this report has declared a material or general interest in the matter.
|
ATTACHMENTS |
1. Confidential- St Vincent Gardens - Tender Evaluation Report |
Meeting of the Port Phillip City Council
19 February 2025
|
Audit and Risk Committee - Biannual Report as at 31 December 2024 |
|
|
Executive Member: |
Robyn Borley, Director, Governance and Performance |
|
PREPARED BY: |
Julie Snowden, Head of Risk and Assurance |
1. PURPOSE
1.1 To present the Audit and Risk Committee Biannual Report as of 31 December 2024.
2. EXECUTIVE Summary
2.1 Council is required by the Local Government Act (LGA) 2020 to establish an Audit and Risk Committee (the Committee) as an advisory committee of Council.
2.2 Under the LGA, the Audit and Risk Committee must prepare a biannual report on activities to Council.
2.3 This report was prepared in conjunction with the current Audit and Risk Committee Chair and satisfies this reporting requirement.
2.4 The last update provided to Council was the presentation of the Audit and Risk Committee Biannual report as of 30 June 2024.
|
That Council: 3.1 Notes the Audit and Risk Committee Biannual Report as of 31 December 2024, which details activities of the Committee covering scheduled meetings held 5 September 2024 and 17 December 2024. |
4. KEY POINTS/ISSUES
4.1 Reporting for this Report
This report covers the Committee’s work for scheduled meetings held 5 September 2024 and 17 December 2024.
4.2 Meeting Attendance
|
Name |
Role |
Meetings |
|
|
5 September 2024 (Scheduled meeting) |
17 December 2024 (Scheduled meeting) |
||
|
Brian Densem |
Independent Member (Chair) |
Attended |
Apology (bereavement) |
|
Helen Lanyon |
Independent Member |
Attended |
Attended (chaired) |
|
Kylie Maher |
Independent Member |
Attended |
Attended |
|
Cr. Heather Cunsolo |
Councillor (Mayor) |
Attended |
N/A |
|
Cr. Christina Sirakoff |
Councillor |
Attended |
N/A |
|
Cr. Louise Crawford |
Councillor (Mayor) |
N/A |
Attended |
|
Cr. Bryan Mears |
Councillor |
N/A |
Attended |
4.3 Leadership Network
CEO, Executive Manager Organisational Performance and Governance, CFO and Head of Risk and Assurance attended both meetings. Other members of the Leadership Network generally attend to provide detailed updates to the Committee on the applicable activities of their respective divisions / areas within Council. This enables the Committee to gain a better appreciation of City of Port Phillip specific matters.
4.4 External Service Providers
The internal audit team Aster Advisory, formally Pitcher Partners (after undergoing a name change and org restructure) attended both scheduled meetings with the external audit team BDO (the agent appointed by the Victorian Auditor General Office VAGO) attending when they have specific items to discuss.
4.5 Annual Work Plan
Section 54(3) of the Act, a Committee must adopt an annual work program.
Each year the Committee collaborate with Council’s CEO, Executive Manager, Governance and Organisational Performance and Head of Risk and Assurance to ensure that the responsibilities of the Committee are scheduled and will be carried out.
The Annual Work Plan is reviewed at the same time as the Charter to ensure alignment. The work of the Committee over the reporting period is summarised below in each of the key areas.
4.6 Committee Business
The agendas for the Committee meetings were driven by the Committee’s Annual Work Plan.
4.7 Matters considered by the Committee at its 5 September 2024 meeting were:
4.7.1 Committee only time
The Committee and the Auditors discussed the status of the internal and external audit programs.
4.7.2 Chief Executive Officer’s Report
The Committee noted an overview from the CEO on key activities, including Council transition and election policy, procurement and contract improvements and open space acquisition.
4.7.3 Strategic Risk and Internal Audit (SRIA)
The Committee noted the regular SRIA update, the Internal Audit Recommendations Tracking Status Report, a deep dive into the Climate Change strategic risk and a status update on the Waste Review management actions.
4.7.4 Assurance Activities Update
The Committee discussed the audit findings and Management Action Plans from the IT Disaster Recovery and Business Continuity internal audit noting that overall, Council’s business continuity plans were aligned with better practice.
The Committee also endorsed the scopes for the following audits: Planning Compliance & Enforcement, Open Space Contributions, Subdivision permits and Rates Management. The Committee also noted the 2024/25 Internal Audit Pan status report, and the recent issues brief as presented by Aster Advisory.
4.7.5 External Audit
External representatives from BDO, agent appointed by the Victorian Auditor General’s Office (VAGO) discussed the performance statements and the interim closure reports, commending the Chief Financial Officer and the finance team for their efforts. The Committee thanked them for their excellent summary.
The Committee noted the Management Representation Letter commending management on their excellent certification process and moved to endorse the annual accounts and the performance statement for adoption by Council in principle. The Committee also noted the review of Asset Revaluation and Depreciation Methods report.
4.7.6 Compliance Monitoring
The Committee noted the regular Compliance update, the biannual Safety and Wellbeing update, the Procurement update (including an update on the Procurement Framework and the annual Procurement and Vendor Compliance update), an update on Councillor Expenses, Gifts and Hospitality, Register of Delegations, the annual South Melbourne Market update and a general Policy update.
4.7.7 Financial Monitoring
The Committee noted the Financial Sustainability Standing Report, the Financial Reporting package and the Rates Collected and Rates Outstanding Report.
4.7.8 Supplementary Reports
The Committee noted the Digital and Technology Services’ six monthly update.
4.8 Matters considered by the Committee at its 17 December 2024 meeting were:
4.8.1 Committee only time
The Committee met with the Internal Auditor to discuss the status of the internal audit program.
4.8.2 Chief Executive Officer’s Report
The Committee noted the overview from the CEO on key activities, including an update on the following organisational key topics: Continued focus on the Election and transition of the new Council and associated mandatory training (attended by all of the Executive Leadership Team), Governance team changes including the appointment of a new Director, and work on the new Council Plan and associated community engagement approach
4.8.3 Strategic Risk and Internal Audit (SRIA)
The Committee noted the regular SRIA update, the Internal Audit Recommendations Tracking Status Report, deep dives into both the Transport and Parking Strategic Risk and the Economic conditions Strategic Risk and the annual Insurance Update.
4.8.4 Assurance Activities Update
The Committee discussed the audit findings from the Planning Compliance & Enforcement audit and Subdivision Permits audit noting additional work was required by management before finalising the resultant Action Plans. The Committee also noted the 2024/25 Internal Audit Plan status report and endorsed the Internal Audit Charter.
4.8.5 External Audit
The Committee noted the final VAGO Management Letter.
4.8.6 Compliance Monitoring
The Committee noted the regular Compliance update, a status update on the Waste Review management actions, the annual business Continuity and Disaster Recovery update and the annual Customer Complaints compliance reporting.
4.8.7 Financial Monitoring
The Committee noted the financial sustainability standing report and the quarterly Financial / Portfolio Deliverability Review.
4.8.8 Supplementary Reports
The Committee noted a Fishermans Bend Update and an update of Council’s Gender Equality action plan.
4.8.9 Performance Evaluation
The Committee noted the results of the annual Self-Assessment Survey on its own performance.
4.8.10 Membership Expirations
The Committee: recommended the reappointment of independent member Mr Brian Densem for a further 3-year term and nominated an independent member as Chairperson for the 2025 calendar year – considered by Council under separate report 5 February 2025.
5. Gender Impact Assessment
5.1 A gender impact assessment was not required in the preparation of this report.
6. ALIGNMENT TO COUNCIL PLAN AND COUNCIL POLICY
6.1 Strategic Direction 5 - Well Governed Port Phillip: Supporting sound decision-making through transparency, accountability, community participation, risk management and compliance.
7. OFFICER MATERIAL OR GENERAL INTEREST
7.1 No officers involved in the preparation of this report has declared a material or general interest in the matter.
|
ATTACHMENTS |
Nil |
Meeting of the Port Phillip City Council
19 February 2025
|
Councillor Expenses Monthly Reporting - November, December 2024 and January 2025 |
|
|
Executive Member: |
Robyn Borley, Director, Governance and Performance |
|
PREPARED BY: |
Mitchell Gillett, Coordinator Councillor and Executive Support |
1. PURPOSE
1.1 To report on the expenses incurred by Councillors during November, December 2024, and January 2025 in accordance with the Councillor Expenses and Support Policy.
2. EXECUTIVE Summary
2.1 The Local Government Act 2020 requires Council to maintain a policy in relation to the reimbursement of out-of-pocket expenses for councillors and members of delegated committees. Council endorsed its Councillor Expenses and Support Policy at the Council Meeting held on 19 June 2024.
2.2 The policy requires a monthly report on Councillor allowances and expenses to be tabled at a Council meeting in addition to publishing the monthly report on Council’s website.
2.3 The report outlines the total amount of expenses and support provided to Councillors and is detailed by category of support. Any reimbursements made by Councillors are also included in this report.
|
That Council: 3.1 Notes the monthly Councillor expenses report for November 2024 (attachment 1) and that this will be made available on Council’s website. 3.2 Notes the monthly Councillor expenses report for December 2024 (attachment 2) and that this will be made available on Council’s website. 3.3 Notes the monthly Councillor expenses report for January 2025 (attachment 3) and that this will be made available on Council’s website. |
4. KEY POINTS/ISSUES
4.1 The Local Government Act 2020 (the Act) provides that councillors and members of delegated committees are entitled to be reimbursed for bona fide out-of-pocket expenses that have been reasonably incurred while performing their role, and that are reasonably necessary to perform their role.
4.2 The management of expenses is governed by the updated Councillor Expenses and Support Policy (the Policy), developed in accordance with the requirements of the Act and adopted by Council on 19 June 2024.
4.3 The Policy sets out the process for submitting requests for support and/or reimbursement. All requests are required to be assessed by officers prior to processing.
4.4 All requests for reimbursement must be lodged with officers for processing no later than 30 days from the end of the calendar month, except for the month of June where claims must be submitted within 7 days. Claims for reimbursement lodged outside this timeline will not be processed unless resolved by Council.
4.5 To
accurately capture expenses, monthly reports are prepared no earlier than
30 days following the end of the month and generally reported at the next
available Council meeting cycle. This means that reports are generally
presented in a 2-3 month rolling cycle.
4.6 Notes the pro-rata Phone and Communications charges for November 2024 were captured in addition to the standard service charges in December 2024, hence that month’s charges being higher.
4.7 Notes the variations in Phone and Communications charges is due to the number of devices requested by those Councillors, such as the use of an iPad as well as a mobile phone.
4.8 Notes the variations in Phone and Communications charges between Councillors that have the same number of devices is due to some Councillors being on higher data plans than others and that this will be rectified going forward so that all Councillors will be on the same data plans.
5. CONSULTATION AND STAKEHOLDERS
5.1 No community consultation is required for the purposes of this report.
5.2 A copy of Councillor expense reporting will be provided to the Audit and Risk Committee.
6. LEGAL AND RISK IMPLICATIONS
6.1 The provision of expenses and support to Councillors is governed by the Local Government Act 2020, and Council’s adopted policy.
7. FINANCIAL IMPACT
7.1 Provision of support and expenses for Councillors is managed within Council’s approved operational budgets.
8. ENVIRONMENTAL IMPACT
8.1 There are no direct environmental impacts as a result of this report.
9. COMMUNITY IMPACT
9.1 This report provides to the community transparency and accountability by publicly disclosing expenses and support accessed by Councillors.
10. ALIGNMENT TO COUNCIL PLAN AND COUNCIL POLICY
10.1 Reporting on Councillor expenses delivers on Strategic Direction 5 – Well Governed Port Phillip.
11. IMPLEMENTATION STRATEGY
11.1 Council reports to the community monthly on the expenses and reimbursements provided to Councillors.
11.2 Officers will publish monthly expense reports to Council’s website once adopted.
12. OFFICER material OR general INTEREST
12.1 No officers involved in the preparation of this report has declared a material or general interest in the matter.
|
ATTACHMENTS |
1. Declaration of Councillor Expenses - November 2024 2. Declaration of Councillor Expenses - December 2024 3. Declaration of Councillor Expenses - January 2025 |
Meeting of the Port Phillip City Council
19 February 2025
14.1 Notice of Motion - Councillor Hardy - Changes to Local Law........................................................ 148
Meeting of the Port Phillip City Council
19 February 2025
|
Notice of Motion - Councillor Hardy - Changes to Local Law |
I, Councillor Rod Hardy, give notice that I intend to move the Motion outlined below at the Ordinary Meeting of Council on 19 February 2025:
|
1. Requests officers to investigate the following: a. the statutory process under section 73 of the Local Government Act 2020 for undertaking a Local Law amendment; b. any regulatory compliance and application issues; and c. an estimate of costs and timelines for the following City of Port Phillip Local Law changes to the current Local Law: i. Replace 17(1b) A person must not on or in Council land, a road or a footpath: “behave in a manner which unreasonably interferes with another person including sitting, sleeping or laying on or in the Council land, road or footpath. ii. Replace section 42 “A person must not reside in temporary accommodation including a vehicle, tent, caravan or any good or chattel that enables a living arrangement or sleep on council land or in any public place. iii. Replace section 43 1. A person must not place or cause to be placed on a footpath, access way, car park, public place or Council land any furniture or good or chattel that obstructs that footpath or accessway or enables a living arrangement or sleep. 2. A council staff member or authorised officer may remove the furniture, good, chattel or item that enables a living arrangement or sleep where in the opinion of the Council staff member or authorised officer is in contravention of Section 43 (1). 3. A council staff member or authorised officer may impound, confiscate or dispose of any item or items removed under Section 43 (1). 4. A Council staff member or authorised officer may in circumstances arising in contravention of Section 43(1) if in their opinion the furniture, good, chattel or property enabling a living arrangement or sleep where a person or persons deny ownership of the property and or the property in their reasonable belief has been abandoned. The Council staff member or authorised officer may impound, confiscate, or dispose of any item or items removed under Section 43 (1b). d. Requests officers to provide a report back to Council by May 2025. |
Supporting Information
Overtime I have seen the amenity of our municipality deteriorate to the point where the community is constantly raising to Council how unsafe they feel. This culminated in the recent community organised march along Fitzroy Street, St.Kilda.
My proposed amendments to the existing local law strengthen, give greater authority and clarity to council staff and authorised officers in preserving the amenity of the City of Port Phillip for all residents.
In doing this we will maintain our ongoing compassionate approach to assisting the most vulnerable within our community as resolved by Council at the 11 December 2024 Council meeting.
Meeting of the Port Phillip City Council
19 February 2025
15. Reports by Councillor Delegates
Nil
16. Urgent Business
17.1 Public Open Space - Potential Acquisition..... 151
17.2 Extension of Provision of Landfill Services Contract........................................................... 151
That Council resolves to move into confidential to deal with the following matters pursuant to section 66(2) of the Local Government Act 2020:
17.1 Public Open Space - Potential Acquisition
3(1)(a). Council business information, being information that would prejudice the Council's position in commercial negotiations if prematurely released
3(1)(c). land use planning information, being information that if prematurely released is likely to encourage speculation in land values
3(1)(g(ii)). private commercial information, being information provided by a business, commercial or financial undertaking that if released, would unreasonably expose the business, commercial or financial undertaking to disadvantage.
Reason: The report includes commercial information that would jeopardise Council's commerical position if prematurely released, and information about potential changes to land use, which may potentially result in land speculation, and commerically senitive information provided by a counter-party
17.2 Extension of Provision of Landfill Services Contract
3(1)(a). Council business information, being information that would prejudice the Council's position in commercial negotiations if prematurely released.
Reason: The reports contains details of a contract extension which is subject to third-party negotiations and disclosure of Council's position. If prematurely released, this may impact Council's ability to negotiate an acceptable outcome for the extension.